Nieuwbouw Woningen » Villa » Fuente Alamo &

Villa. Nieuwbouw Woningen Fuente Alamo. Murcia

Ref.  REDSP-30518

320.000

Villa. Nieuwbouw Woningen Fuente Alamo. Murcia

320.000

  • Meters

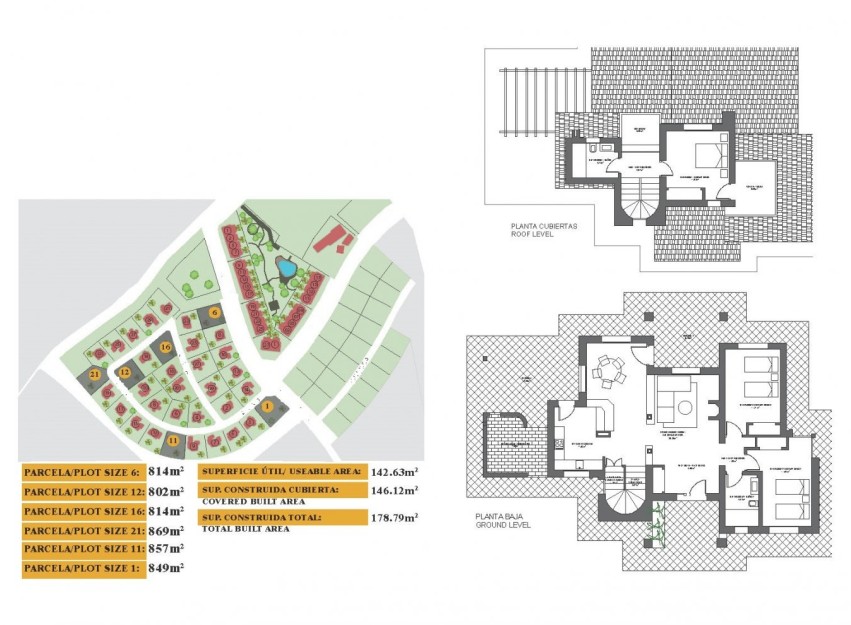
    178m2
  • Perceel

    850m2
  • Slaapkamers

    3
  • Badkamers

    2

Beschrijving

Kenmerken

Slaapkamers Slaapkamers:

3

Badkamers Badkamers:

2

Gebouwd Gebouwd:

178m2

Nuttig Nuttig:

148m2

Plot Plot:

850m2

Afstand naar het strand Afstand naar het strand:

7500 Mts.

Garden
Key ready
Gated
Near Golf / Golf Resort Property
Solarium: Yes
Air Conditioning: Pre-Installed
Double Bedrooms: 3
Parking - Space
Number of Parking Spaces: 1
Storage / Trastero
Terrace: 60 Msq.
Useable Build Space: 148 Msq.
Location: Coastal, Rural, Urbanisation
Beach: 7500 Meters

Kaart

Belcasa

Ontvang meer info

Robby

Robby

Uw agent in Spanje

Je kan ons ook via Whatsapp bereiken

Whatsapp WhatsApp verzenden

Contactformulier

Responsable del tratamiento: Robby Devue, Finalidad del tratamiento: Gestión y control de los servicios ofrecidos a través de la página Web de Servicios inmobiliarios, Envío de información a traves de newsletter y otros, Legitimación: Por consentimiento, Destinatarios: No se cederan los datos, salvo para elaborar contabilidad, Derechos de las personas interesadas: Acceder, rectificar y suprimir los datos, solicitar la portabilidad de los mismos, oponerse altratamiento y solicitar la limitación de éste, Procedencia de los datos: El Propio interesado, Información Adicional: Puede consultarse la información adicional y detallada sobre protección de datos Aquí.
WhatsApp