Nouvelle construction » Villa » Fuente Alam

Villa. Nouvelle construction Fuente Alamo. Murcia

Réf.  REDSP-30518

320.000

Villa. Nouvelle construction Fuente Alamo. Murcia

320.000

  • Mètres

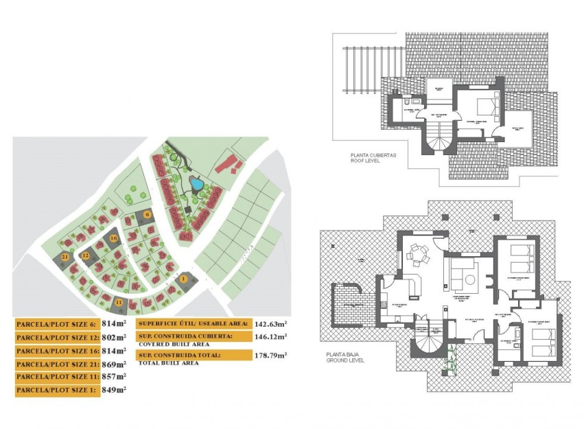
    178m2
  • Terrain

    850m2
  • Chambres

    3
  • Salles de bains

    2

La description

Les caractéristiques

Chambres Chambres:

3

Nbr. Sdb Nbr. Sdb:

2

Construit Construit:

178m2

Construits Construits:

148m2

Terrain Terrain:

850m2

Distance à la plage Distance à la plage:

7500 Mts.

Garden
Key ready
Gated
Near Golf / Golf Resort Property
Solarium: Yes
Air Conditioning: Pre-Installed
Double Bedrooms: 3
Parking - Space
Number of Parking Spaces: 1
Storage / Trastero
Terrace: 60 Msq.
Useable Build Space: 148 Msq.
Location: Coastal, Rural, Urbanisation
Beach: 7500 Meters

Emplacement

Belcasa

Recevoir plus d'infos

Robby

Robby

Votre agent en Espagne

Vous pouvez aussi nous contacter via WhatsApp

Whatsapp Envoyer un WhatsApp

Formulaire de contact

Responsable del tratamiento: Robby Devue, Finalidad del tratamiento: Gestión y control de los servicios ofrecidos a través de la página Web de Servicios inmobiliarios, Envío de información a traves de newsletter y otros, Legitimación: Por consentimiento, Destinatarios: No se cederan los datos, salvo para elaborar contabilidad, Derechos de las personas interesadas: Acceder, rectificar y suprimir los datos, solicitar la portabilidad de los mismos, oponerse altratamiento y solicitar la limitación de éste, Procedencia de los datos: El Propio interesado, Información Adicional: Puede consultarse la información adicional y detallada sobre protección de datos Aquí.
WhatsApp