Nieuwbouw Woningen » Villa » Aspe » P

Villa. Nieuwbouw Woningen Aspe. Alicante

Ref.  REDSP-50004

637.000

Villa. Nieuwbouw Woningen Aspe. Alicante

637.000

  • Meters

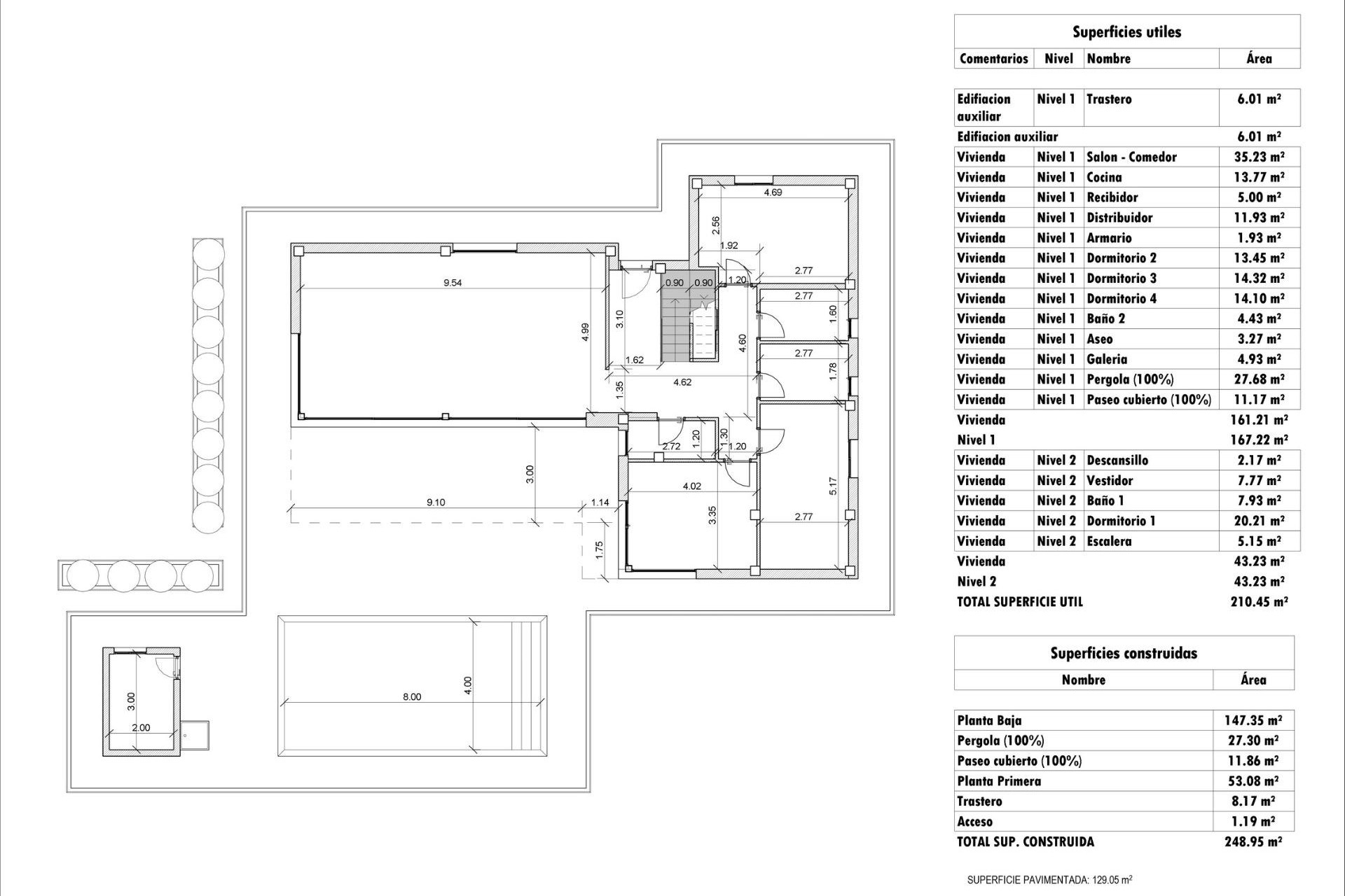
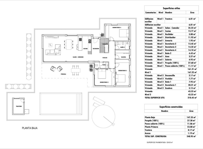
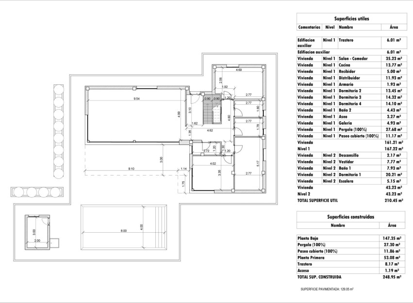
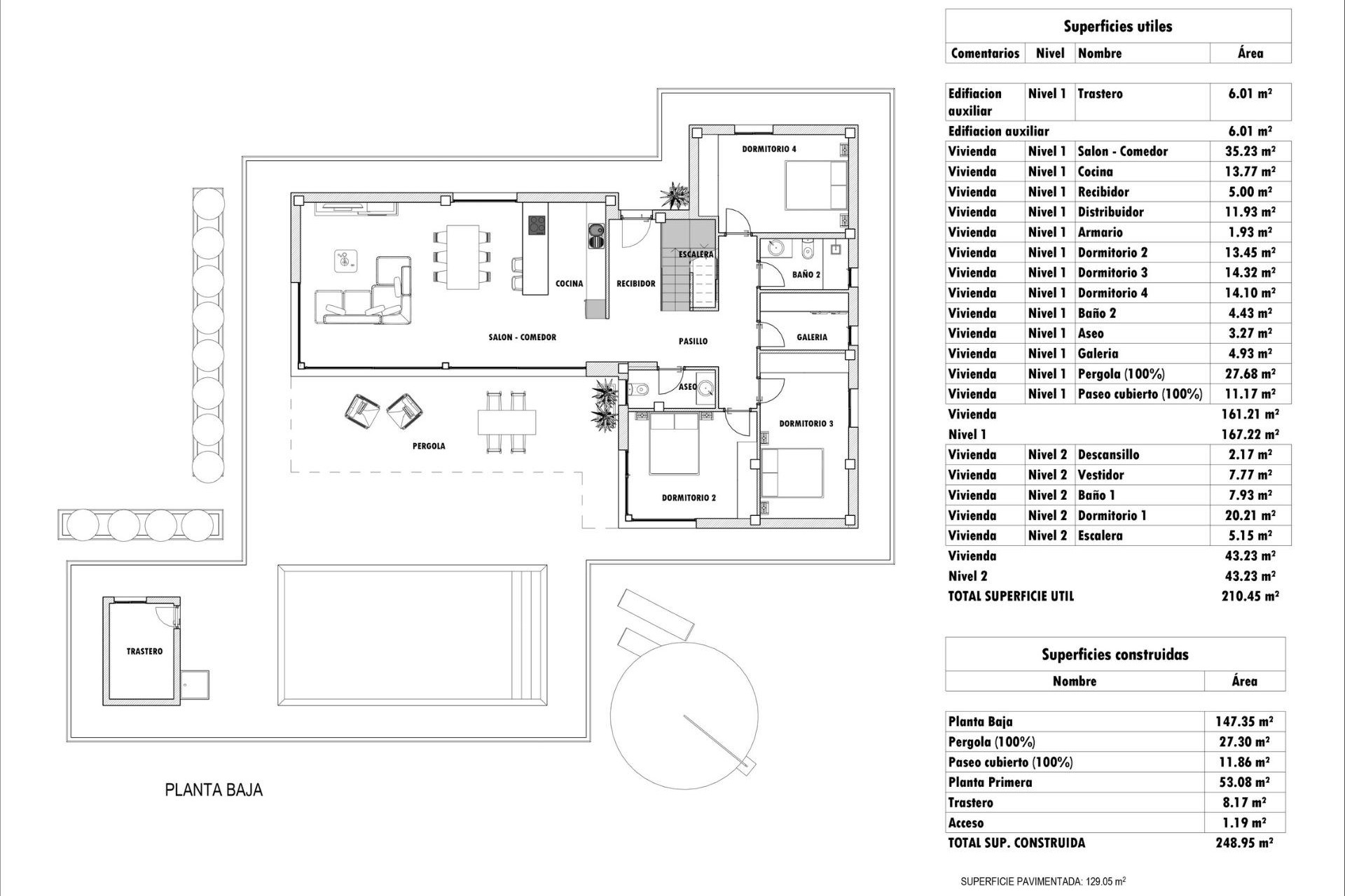
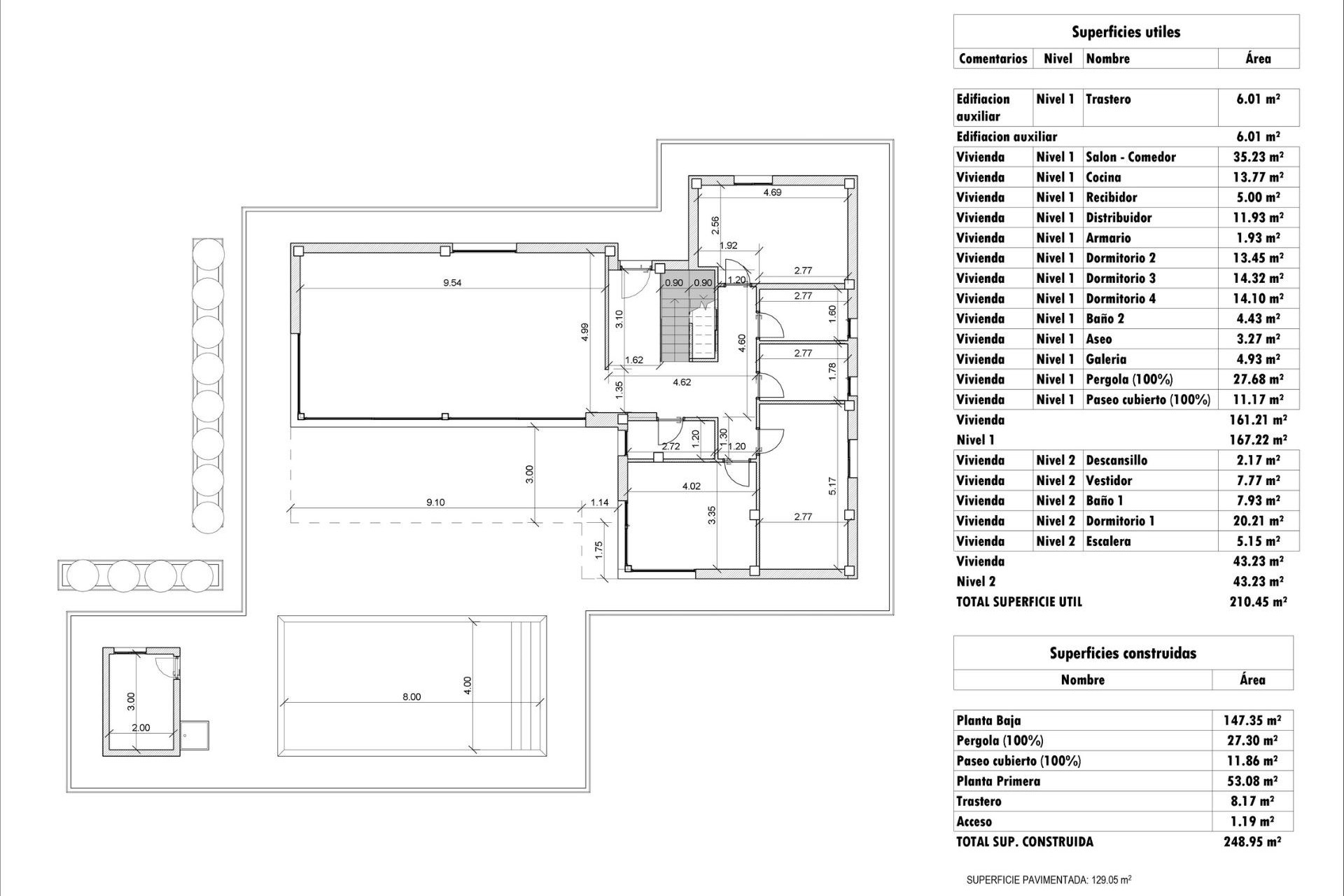
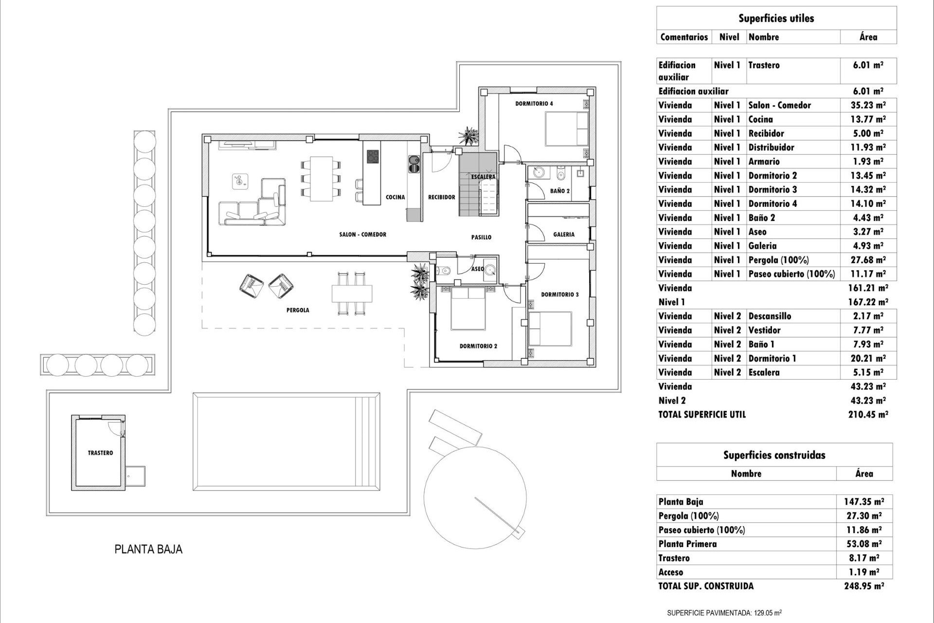
    248m2
  • Perceel

    13.172m2
  • Slaapkamers

    4
  • Badkamers

    3
  • Zwembad

    Ja

Beschrijving

Kenmerken

Slaapkamers Slaapkamers:

4

Badkamers Badkamers:

3

Gebouwd Gebouwd:

248m2

Nuttig Nuttig:

210m2

Plot Plot:

13.172m2

Zwembad Zwembad:

Ja

Afstand naar het strand Afstand naar het strand:

25000 Mts.

Garden
Gated
Near Schools
Air Conditioning: Pre-Installed
Parking - Space
Number of Parking Spaces: 1
Storage / Trastero
Double Bedrooms: 4
Beach: 25000 Meters
Location: Rural, Mountain
Terrace: 38 Msq.
Useable Build Space: 210 Msq.
Private pool

Kaart

Belcasa

Ontvang meer info

Robby

Robby

Uw agent in Spanje

Je kan ons ook via Whatsapp bereiken

Whatsapp WhatsApp verzenden

Contactformulier

Responsable del tratamiento: Robby Devue, Finalidad del tratamiento: Gestión y control de los servicios ofrecidos a través de la página Web de Servicios inmobiliarios, Envío de información a traves de newsletter y otros, Legitimación: Por consentimiento, Destinatarios: No se cederan los datos, salvo para elaborar contabilidad, Derechos de las personas interesadas: Acceder, rectificar y suprimir los datos, solicitar la portabilidad de los mismos, oponerse altratamiento y solicitar la limitación de éste, Procedencia de los datos: El Propio interesado, Información Adicional: Puede consultarse la información adicional y detallada sobre protección de datos Aquí.
WhatsApp