New Build » Villa » Aspe » Poligono 1

Villa. New Build Aspe. Alicante

Ref.  REDSP-50004

637.000

Villa. New Build Aspe. Alicante

637.000

  • Meters

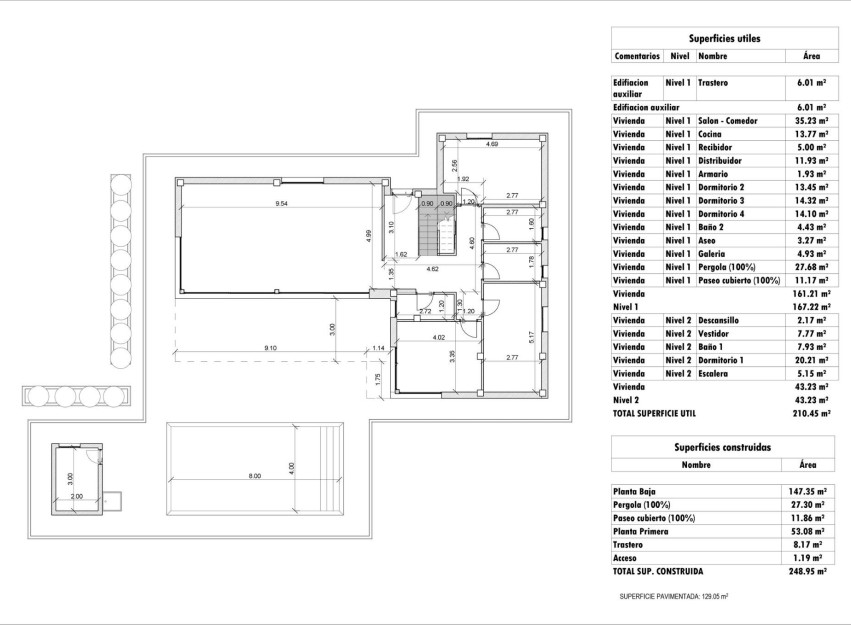
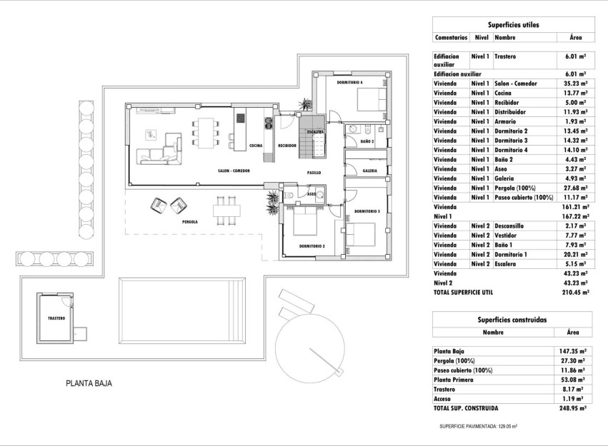
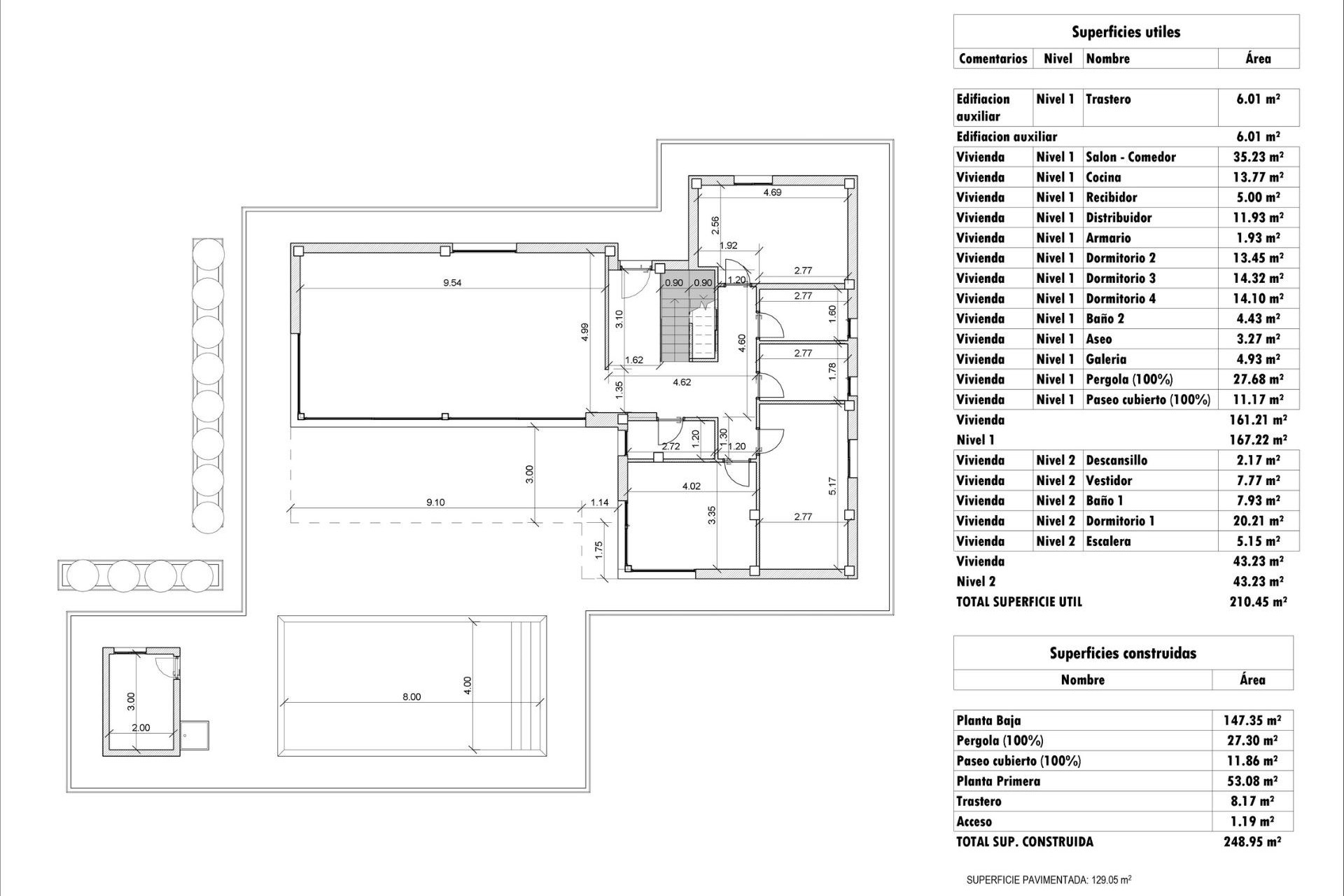
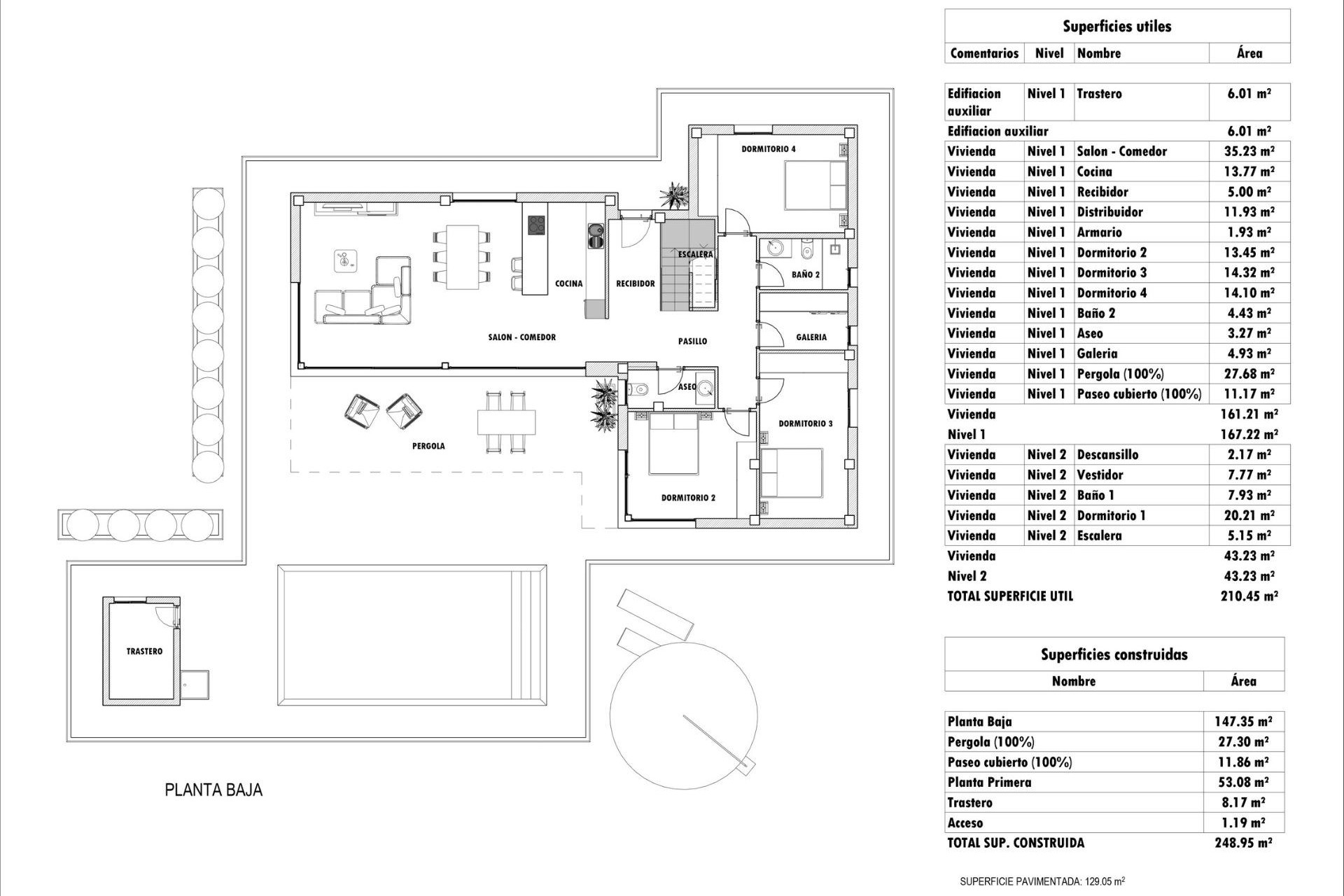
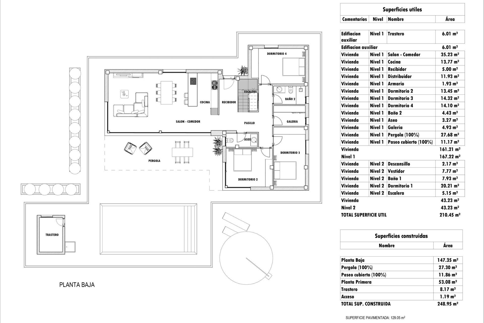
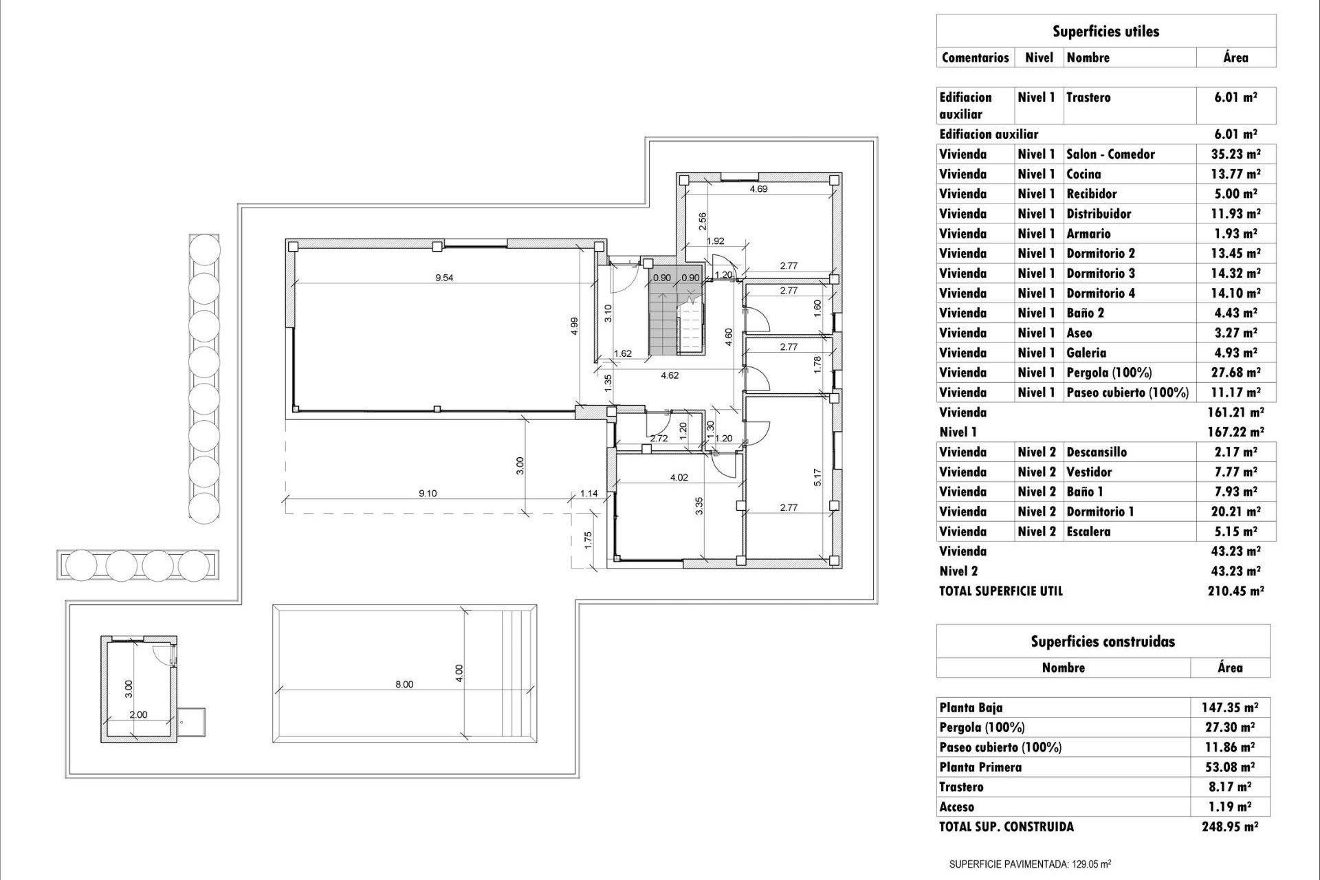
    248m2
  • Plot

    13.172m2
  • Bedrooms

    4
  • Bathrooms

    3
  • Pool

    Yes

Description

Features

Bedrooms Bedrooms:

4

Bathrooms Bathrooms:

3

Built Built:

248m2

Usable Usable:

210m2

Plot Plot:

13.172m2

Pool Pool:

Yes

Distance to beach Distance to beach:

25000 Mts.

Near Schools
Air Conditioning: Pre-Installed
Parking - Space
Number of Parking Spaces: 1
Storage / Trastero
Double Bedrooms: 4
Beach: 25000 Meters
Location: Rural, Mountain
Terrace: 38 Msq.
Useable Build Space: 210 Msq.
Private pool
Garden
Gated

Location

Belcasa

Receive more info

Robby

Robby

Your agent in Spain

You can also reach us via WhatsApp

Whatsapp Send WhatsApp

Contact Form

Responsable del tratamiento: Robby Devue, Finalidad del tratamiento: Gestión y control de los servicios ofrecidos a través de la página Web de Servicios inmobiliarios, Envío de información a traves de newsletter y otros, Legitimación: Por consentimiento, Destinatarios: No se cederan los datos, salvo para elaborar contabilidad, Derechos de las personas interesadas: Acceder, rectificar y suprimir los datos, solicitar la portabilidad de los mismos, oponerse altratamiento y solicitar la limitación de éste, Procedencia de los datos: El Propio interesado, Información Adicional: Puede consultarse la información adicional y detallada sobre protección de datos Aquí.
WhatsApp