Villas modernes neuves à La Herrada Los Montesinos avec piscine privée
Villas modernes et neuves à La Herrada Los Montesinos avec piscine privée
Projet résidentiel exclusif dans un cadre paisible
Situé dans le prestigieux quartier résidentiel de La Herrada à Los Montesinos, ce lotissement exclusif de 16 villas modernes offre intimité, confort et une excellente qualité de vie. La Herrada est connue pour son atmosphère résidentielle paisible, sa proximité avec les commodités quotidiennes et son emplacement privilégié entre les célèbres marais salants de Torrevieja et La Mata. C'est un endroit idéal pour ceux qui recherchent un style de vie méditerranéen détendu et sain dans le sud de la Costa Blanca.
Design contemporain avec des espaces intérieurs optimisés
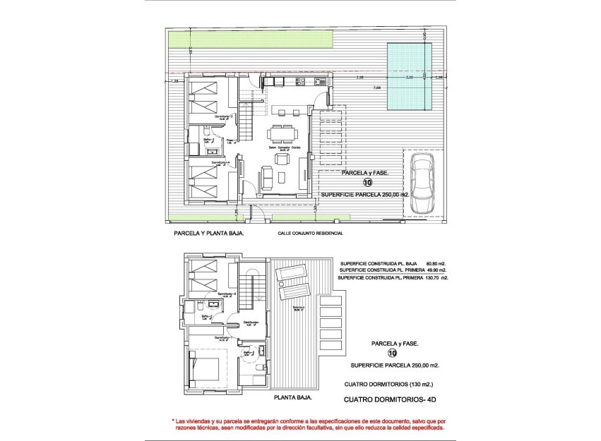
Chaque villa dispose d'une surface habitable de 130 m² bien répartie sur deux étages, conçue pour maximiser la lumière naturelle et la fonctionnalité. Construites sur des terrains de 250 m², les propriétés offrent de spacieux espaces extérieurs parfaits pour prendre le soleil, se divertir ou se détendre au bord de la piscine privée.
Aménagement confortable sur deux étages
Le rez-de-chaussée comprend un salon ouvert avec une cuisine entièrement intégrée et un accès direct au jardin et à la piscine. Cet étage comprend également deux chambres, une salle de bain complète et une buanderie pratique.
À l'étage, vous trouverez deux chambres spacieuses, chacune avec sa propre salle de bain, dont l'une est attenante. Les deux chambres ont accès à une terrasse privée ouverte de 28 m². Pour ceux qui souhaitent encore plus d'espace extérieur, un solarium sur le toit est disponible en option moyennant un supplément.
Finitions de haute qualité et équipements modernes
Les villas comprennent des finitions de qualité telles que des meubles de salle de bains, des miroirs, des parois de douche et le chauffage au sol dans toutes les salles de bains. Elles sont pré-équipées pour la climatisation centralisée, disposent d'un portail d'entrée motorisé pour les véhicules, d'un parking privé sur le terrain et d'un accès résidentiel fermé via une route interne privée.
Emplacement privilégié à proximité des commodités et des attractions principales
Plages de Guardamar et Torrevieja à 9 km
La Marquesa Golf, La Finca Golf et Vistabella Golf à moins de 5 km
Aéroport d'Alicante à 29 km
Parcs naturels, marais salants, pistes cyclables et sentiers de randonnée à proximité
Vivez confortablement au cœur de la Costa Blanca
Ces villas neuves à Los Montesinos offrent la combinaison parfaite entre confort moderne, environnement naturel et excellente accessibilité. Que vous recherchiez une résidence permanente ou une maison de vacances, ce programme immobilier offre tout ce dont vous avez besoin pour profiter d'un style de vie méditerranéen paisible et confortable. Contactez-nous dès aujourd'hui pour organiser une visite et acquérir votre nouvelle maison à La Herrada.
1051