Villas modernes neuves à La Herrada Los Montesinos avec piscine privée
Villas modernes neuves à La Herrada Los Montesinos avec piscine privée
Projet résidentiel exclusif dans un environnement paisible
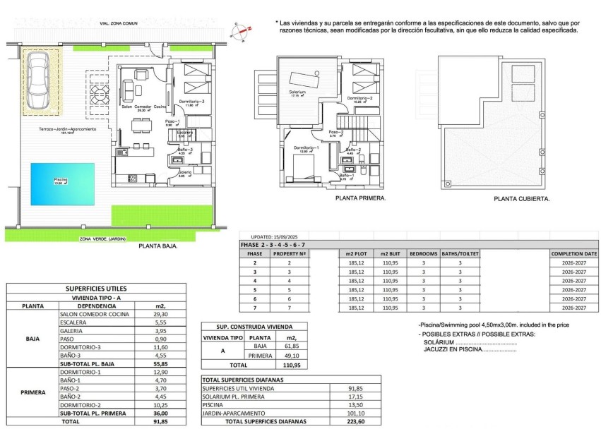
Situé dans la prestigieuse urbanisation La Herrada à Los Montesinos, ce lotissement exclusif de 16 villas modernes offre intimité, confort et une excellente qualité de vie. La Herrada est connue pour son atmosphère résidentielle calme, sa proximité avec les services quotidiens et son emplacement privilégié entre les célèbres lacs salés de Torrevieja et La Mata. C'est un endroit idéal pour ceux qui recherchent un style de vie méditerranéen détendu et sain dans le sud de la Costa Blanca.
Design contemporain avec des espaces intérieurs optimisés
Chaque villa dispose d'une surface habitable bien agencée de 110 m² répartie sur deux étages, conçue pour maximiser la lumière naturelle et la fonctionnalité. Construites sur des terrains à partir de 185 m², les propriétés offrent de généreux espaces extérieurs parfaits pour prendre le soleil, se divertir ou se détendre au bord de la piscine privée.
Aménagement confortable sur deux étages
Le rez-de-chaussée comprend un salon ouvert avec une cuisine entièrement intégrée et un accès direct au jardin et à la piscine. Ce niveau comprend également une chambre, une salle de bain complète et une buanderie pratique.
À l'étage supérieur, il y a deux chambres spacieuses, chacune avec sa propre salle de bains, dont une en suite. Les deux chambres bénéficient d'un accès à une terrasse privée ouverte de 17 m². Pour ceux qui souhaitent encore plus d'espace extérieur, un solarium sur le toit est disponible en option moyennant un supplément.
Finitions de haute qualité et équipements modernes
Les villas comprennent des finitions de qualité telles que des meubles de salle de bains, des miroirs, des parois de douche et le chauffage au sol dans toutes les salles de bains. Il y a une pré-installation pour la climatisation centralisée, un portail d'entrée motorisé, un parking privé sur le terrain et un accès résidentiel fermé via une rue interne privée.
Emplacement privilégié à proximité des principales commodités et attractions
Plages de Guardamar et Torrevieja à 9 km
La Marquesa Golf, La Finca Golf et Vistabella Golf à moins de 5 km
Aéroport d'Alicante à 29 km
Parcs naturels, lacs salés, pistes cyclables et sentiers de randonnée à proximité
Vivez confortablement au cœur de la Costa Blanca
Ces villas neuves à Los Montesinos offrent la combinaison parfaite entre confort moderne, environnement naturel et excellente accessibilité. Que vous recherchiez une résidence permanente ou une maison de vacances, ce programme immobilier vous offre tout ce dont vous avez besoin pour profiter d'un style de vie méditerranéen paisible et pratique. Contactez-nous dès aujourd'hui pour organiser une visite et réserver votre nouvelle maison à La Herrada.
1051