Nouvelle construction » Villa » Fuente Alam

Villa. Nouvelle construction Fuente Alamo. Murcia

Réf.  REDSP-25813

242.000

Villa. Nouvelle construction Fuente Alamo. Murcia

242.000

  • Mètres

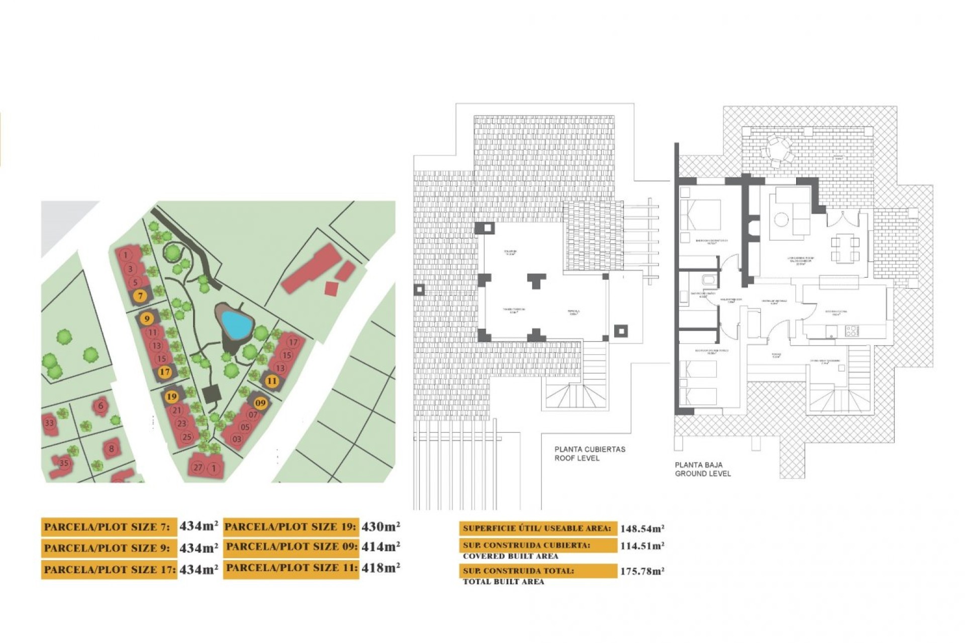
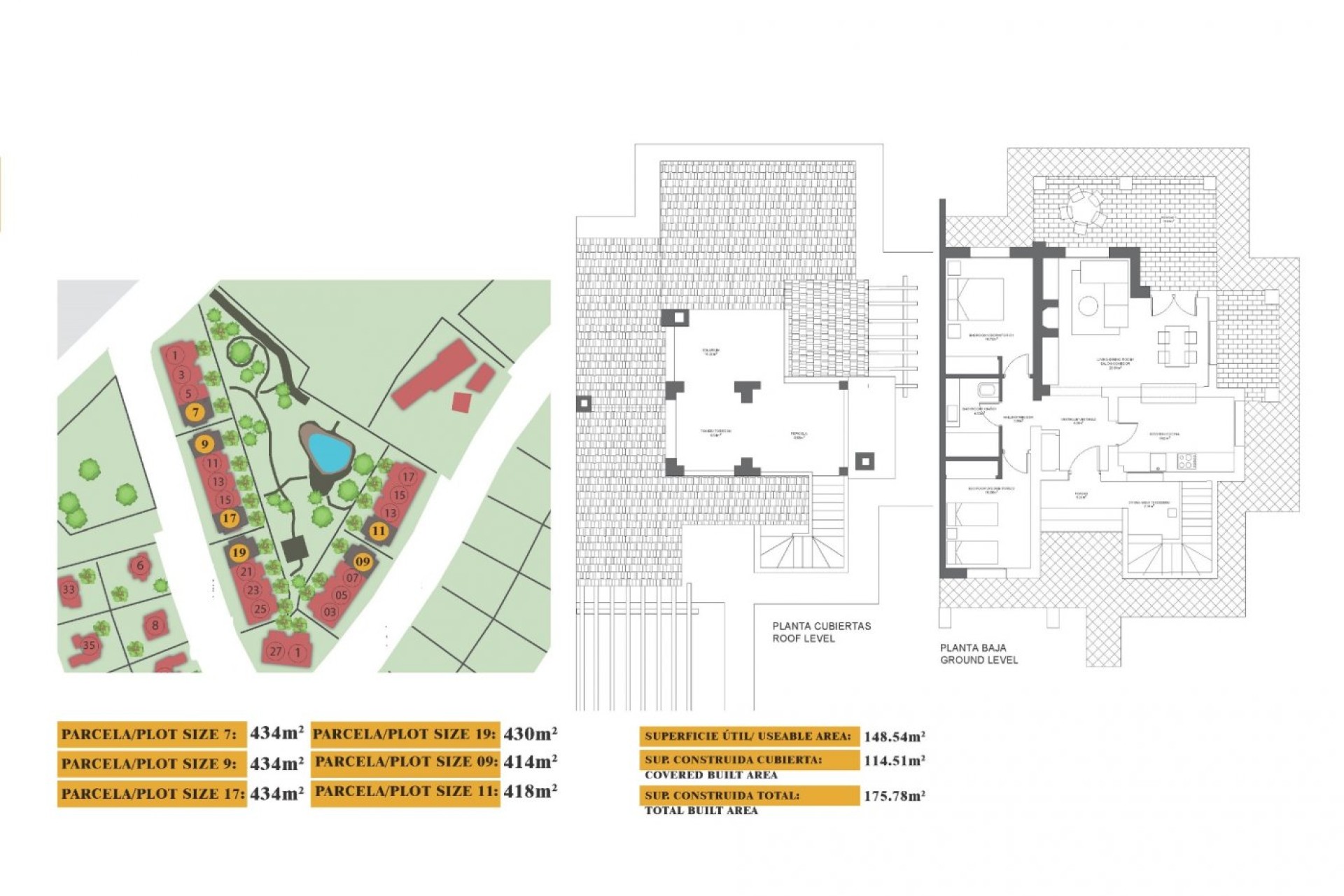
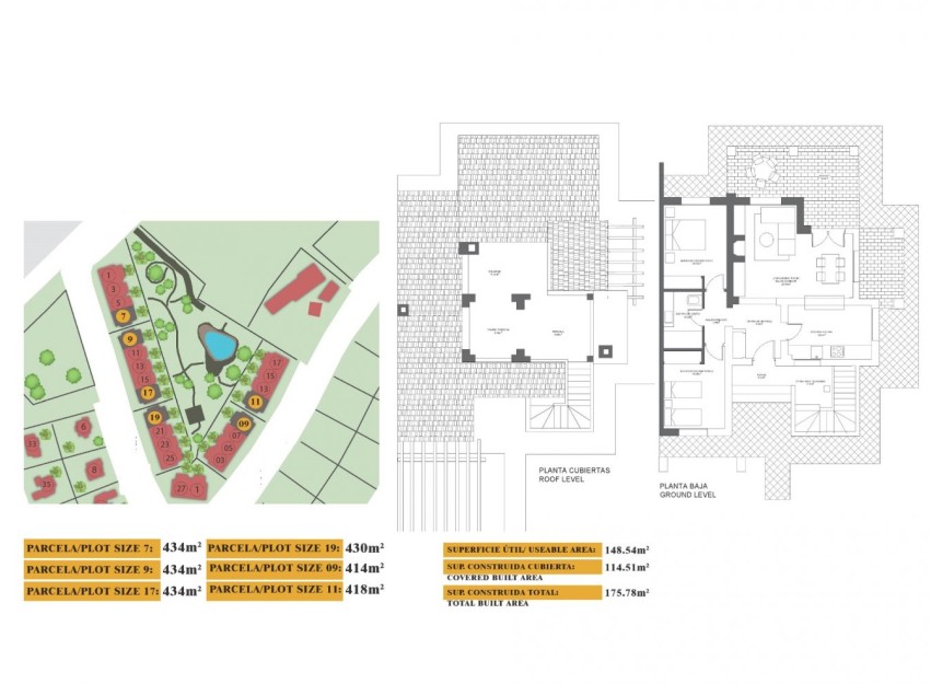
    175m2
  • Terrain

    430m2
  • Chambres

    2
  • Salles de bains

    1

La description

Les caractéristiques

Chambres Chambres:

2

Nbr. Sdb Nbr. Sdb:

1

Construit Construit:

175m2

Construits Construits:

148m2

Terrain Terrain:

430m2

Distance à la plage Distance à la plage:

7500 Mts.

Key ready
Gated
Air Conditioning: Pre-Installed
Double Bedrooms: 2
Parking - Space
Number of Parking Spaces: 1
Storage / Trastero
Useable Build Space: 148 Msq.
Location: Rural, Urbanisation
Terrace: 45 Msq.
Beach: 7500 Meters
Garden

Emplacement

Belcasa

Recevoir plus d'infos

Robby

Robby

Votre agent en Espagne

Vous pouvez aussi nous contacter via WhatsApp

Whatsapp Envoyer un WhatsApp

Formulaire de contact

Responsable del tratamiento: Robby Devue, Finalidad del tratamiento: Gestión y control de los servicios ofrecidos a través de la página Web de Servicios inmobiliarios, Envío de información a traves de newsletter y otros, Legitimación: Por consentimiento, Destinatarios: No se cederan los datos, salvo para elaborar contabilidad, Derechos de las personas interesadas: Acceder, rectificar y suprimir los datos, solicitar la portabilidad de los mismos, oponerse altratamiento y solicitar la limitación de éste, Procedencia de los datos: El Propio interesado, Información Adicional: Puede consultarse la información adicional y detallada sobre protección de datos Aquí.
WhatsApp