New Build » Villa » Fuente Alamo » La

Villa. New Build Fuente Alamo. Murcia

Ref.  REDSP-25813

242.000

Villa. New Build Fuente Alamo. Murcia

242.000

  • Meters

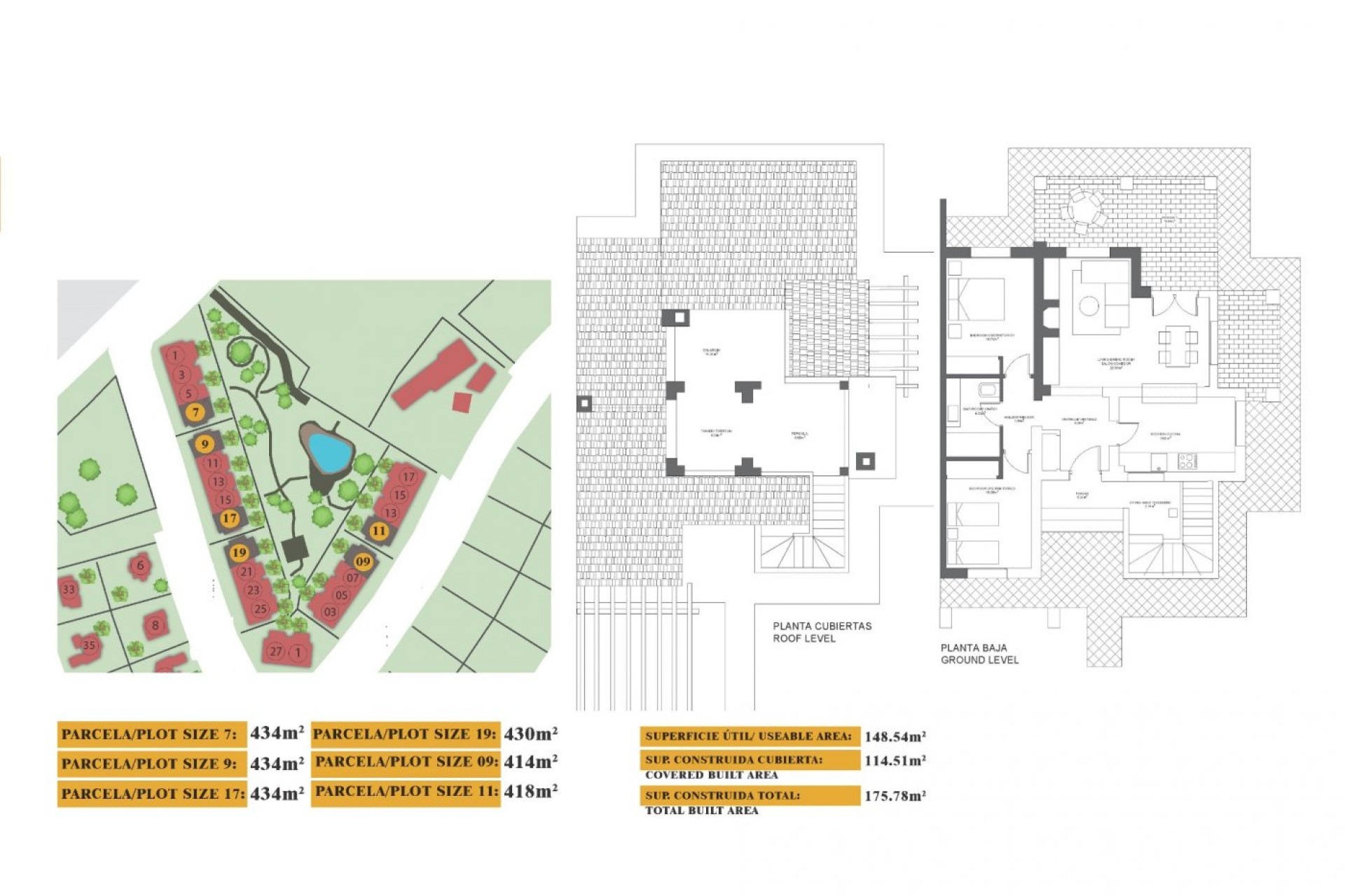
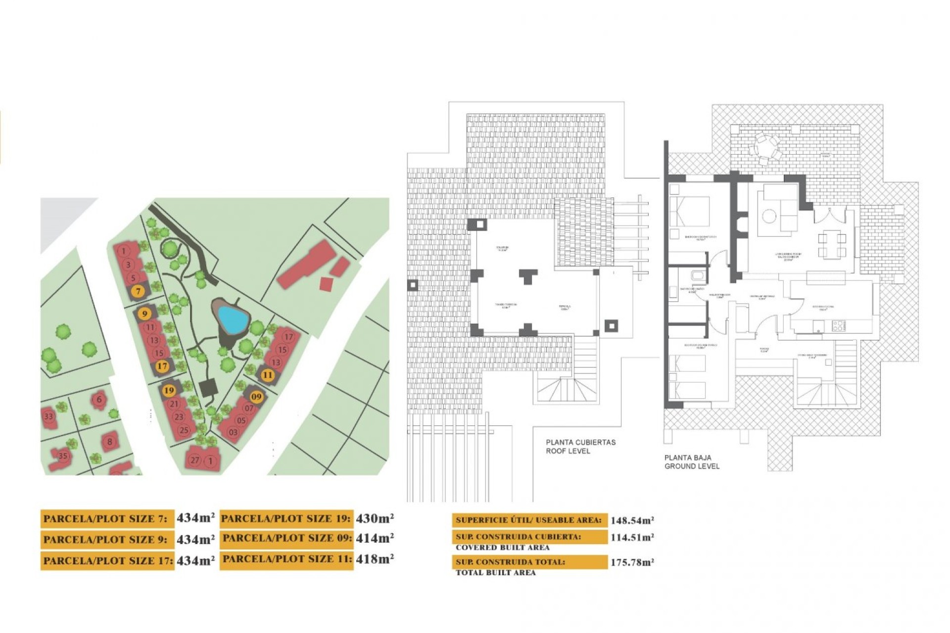
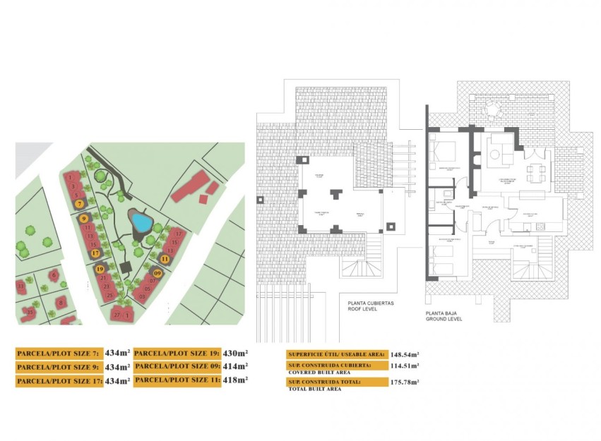
    175m2
  • Plot

    430m2
  • Bedrooms

    2
  • Bathrooms

    1

Description

Features

Bedrooms Bedrooms:

2

Bathrooms Bathrooms:

1

Built Built:

175m2

Usable Usable:

148m2

Plot Plot:

430m2

Distance to beach Distance to beach:

7500 Mts.

Garden
Key ready
Gated
Air Conditioning: Pre-Installed
Double Bedrooms: 2
Parking - Space
Number of Parking Spaces: 1
Storage / Trastero
Useable Build Space: 148 Msq.
Location: Rural, Urbanisation
Terrace: 45 Msq.
Beach: 7500 Meters

Location

Belcasa

Receive more info

Robby

Robby

Your agent in Spain

You can also reach us via WhatsApp

Whatsapp Send WhatsApp

Contact Form

Responsable del tratamiento: Robby Devue, Finalidad del tratamiento: Gestión y control de los servicios ofrecidos a través de la página Web de Servicios inmobiliarios, Envío de información a traves de newsletter y otros, Legitimación: Por consentimiento, Destinatarios: No se cederan los datos, salvo para elaborar contabilidad, Derechos de las personas interesadas: Acceder, rectificar y suprimir los datos, solicitar la portabilidad de los mismos, oponerse altratamiento y solicitar la limitación de éste, Procedencia de los datos: El Propio interesado, Información Adicional: Puede consultarse la información adicional y detallada sobre protección de datos Aquí.
WhatsApp