Modern New Build Villas in La Herrada Los Montesinos With Private Pool
Modern New Build Villas in La Herrada Los Montesinos With Private Pool
Exclusive Residential Project in a Peaceful Environment
Located in the prestigious La Herrada urbanisation in Los Montesinos, this exclusive development of 16 modern villas offers privacy, comfort and an excellent quality of life. La Herrada is known for its quiet residential atmosphere, its proximity to daily services and its privileged setting between the famous salt lakes of Torrevieja and La Mata. It is an ideal location for those seeking a relaxed and healthy Mediterranean lifestyle in the south of the Costa Blanca.
Contemporary Design With Optimised Interior Spaces
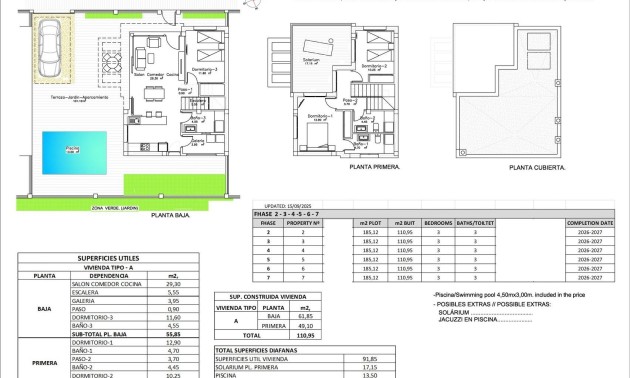
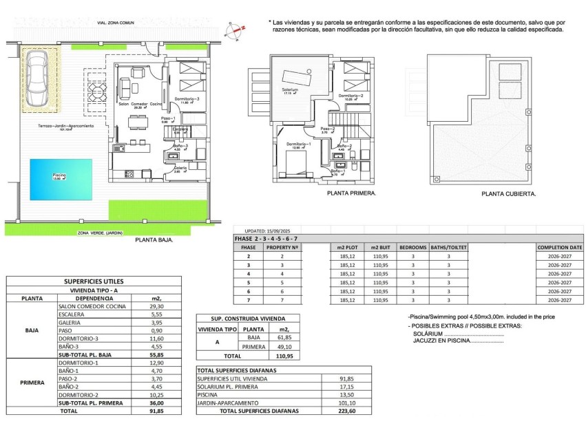
Each villa has 110 m² of well planned living space distributed over two floors, designed to maximise natural light and functionality. Built on plots starting from 185 m², the properties offer generous outdoor areas perfect for sunbathing, entertaining or relaxing by the private pool.
Comfortable Layout Across Two Floors
The ground floor features an open plan living room with a fully integrated kitchen and direct access to the garden and pool area. This level also includes one bedroom, a full bathroom and a convenient laundry room.
On the upper floor, there are two spacious bedrooms, each with its own bathroom, one of them en suite. Both bedrooms enjoy access to a private open terrace of 17 m². For those who want even more outdoor space, there is an optional rooftop solarium available at an additional cost.
High Quality Finishes and Modern Features
The villas include quality finishes such as bathroom furniture, mirrors, shower screens and underfloor heating in all bathrooms. There is pre installation for ducted air conditioning, a motorised vehicle entrance gate, private parking on the plot and a gated residential access via a private internal street.
Prime Location Close to Key Amenities and Attractions
Beaches of Guardamar and Torrevieja 9 km
La Marquesa Golf, La Finca Golf and Vistabella Golf within 5 km
Alicante Airport 29 km
Natural parks, salt lakes, cycling routes and hiking trails nearby
Live Comfortably in the Heart of the Costa Blanca
These new build villas in Los Montesinos offer the perfect combination of modern comfort, natural surroundings and excellent accessibility. Whether you are looking for a permanent residence or a holiday home, this development provides everything you need to enjoy a peaceful and convenient Mediterranean lifestyle. Contact us today to arrange a viewing and secure your new home in La Herrada.
1051