Prachtig appartement tussen de zee en de golf!
Prachtig appartement tussen de zee en de golf!
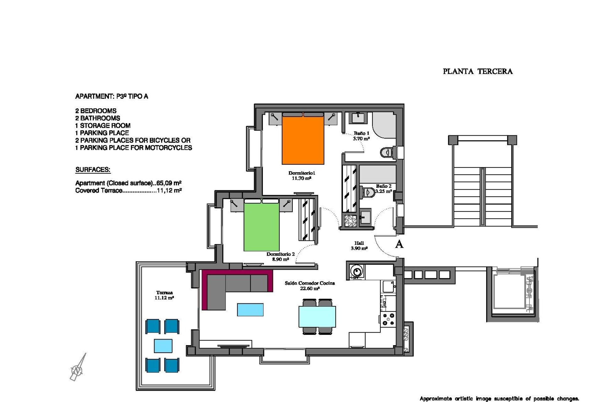
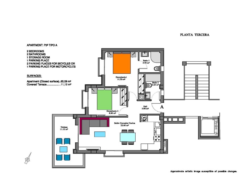
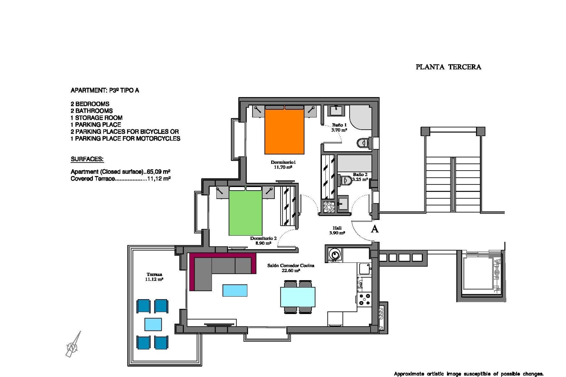
Gezellig appartement met 2 slaapkamers en 2 badkamers
De residentie is gelegen in een rustige en veilige omgeving en is van alle gemakken voorzien (het heeft alle mogelijke comfort). In de directe omgeving vindt u oa 4 schitterende golfbanen, een groot winkelgebied (la Zenia Boulevard), diverse stranden, supermarkten, bars en restaurants, etc. Het is een luxe verblijf, alle appartementen en huizen zijn ruim en comfortabel.
De residentie heeft een eigen parkeerplaats en is voorzien van liften.
In het complex is er een gemeenschappelijk zwembad (groot zwembad, kinderbad en jacuzzi met warm water). Ook een speeltuin en diverse groenvoorzieningen.
Kortom: de ideale plek om uit te rusten en te genieten van de regio, om in Spanje te wonen.
1051