Nieuwbouw Woningen » Villa » Baños y Mendig

Villa. Nieuwbouw Woningen Baños y Mendigo. Murcia

Ref.  REDSP-14575

443.500

Villa. Nieuwbouw Woningen Baños y Mendigo. Murcia

443.500

  • Meters

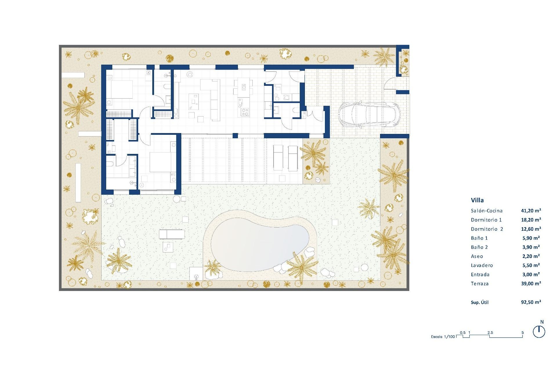
    143m2
  • Perceel

    575m2
  • Slaapkamers

    2
  • Badkamers

    2
  • Zwembad

    Ja

Beschrijving

Kenmerken

Slaapkamers Slaapkamers:

2

Badkamers Badkamers:

2

Gebouwd Gebouwd:

143m2

Nuttig Nuttig:

130m2

Plot Plot:

575m2

Zwembad Zwembad:

Ja

Afstand naar het strand Afstand naar het strand:

25000 Mts.

Terrace: 39 Msq.
Number of Parking Spaces: 1
Location: Urbanisation
Beach: 25000 Meters
Air Conditioning: Yes
Useable Build Space: 130 Msq.
Private pool
Garden
Near Commercial Center
Gated
Near Golf / Golf Resort Property
Near Schools
Toilet: 1
Double Bedrooms: 2
Parking - Space

Kaart

Belcasa

Ontvang meer info

Robby

Robby

Uw agent in Spanje

Je kan ons ook via Whatsapp bereiken

Whatsapp WhatsApp verzenden

Contactformulier

Responsable del tratamiento: Robby Devue, Finalidad del tratamiento: Gestión y control de los servicios ofrecidos a través de la página Web de Servicios inmobiliarios, Envío de información a traves de newsletter y otros, Legitimación: Por consentimiento, Destinatarios: No se cederan los datos, salvo para elaborar contabilidad, Derechos de las personas interesadas: Acceder, rectificar y suprimir los datos, solicitar la portabilidad de los mismos, oponerse altratamiento y solicitar la limitación de éste, Procedencia de los datos: El Propio interesado, Información Adicional: Puede consultarse la información adicional y detallada sobre protección de datos Aquí.
WhatsApp