Luxe nieuwbouwwoningen in Benijófar – Costa Blanca Living
Luxe nieuwbouwwoningen in Benijófar – Costa Blanca Living
Bevoorrechte locatie in Benijófar
Deze exclusieve nieuwbouwwoningen zijn gelegen in het charmante stadje Benijófar, een van de meest gewilde gebieden aan de Costa Blanca. Benijófar staat bekend om zijn mix van traditie en moderne levensstijl en biedt alle essentiële voorzieningen, waaronder supermarkten, apotheken, banken, restaurants en lokale winkels. Het project is strategisch gelegen op slechts 10 km van de gouden stranden van Guardamar del Segura en op slechts 30 km van de luchthaven van Alicante, waardoor het een ideale locatie is voor zowel permanente bewoning als vakantieverblijven.
Ruim en modern ontwerp
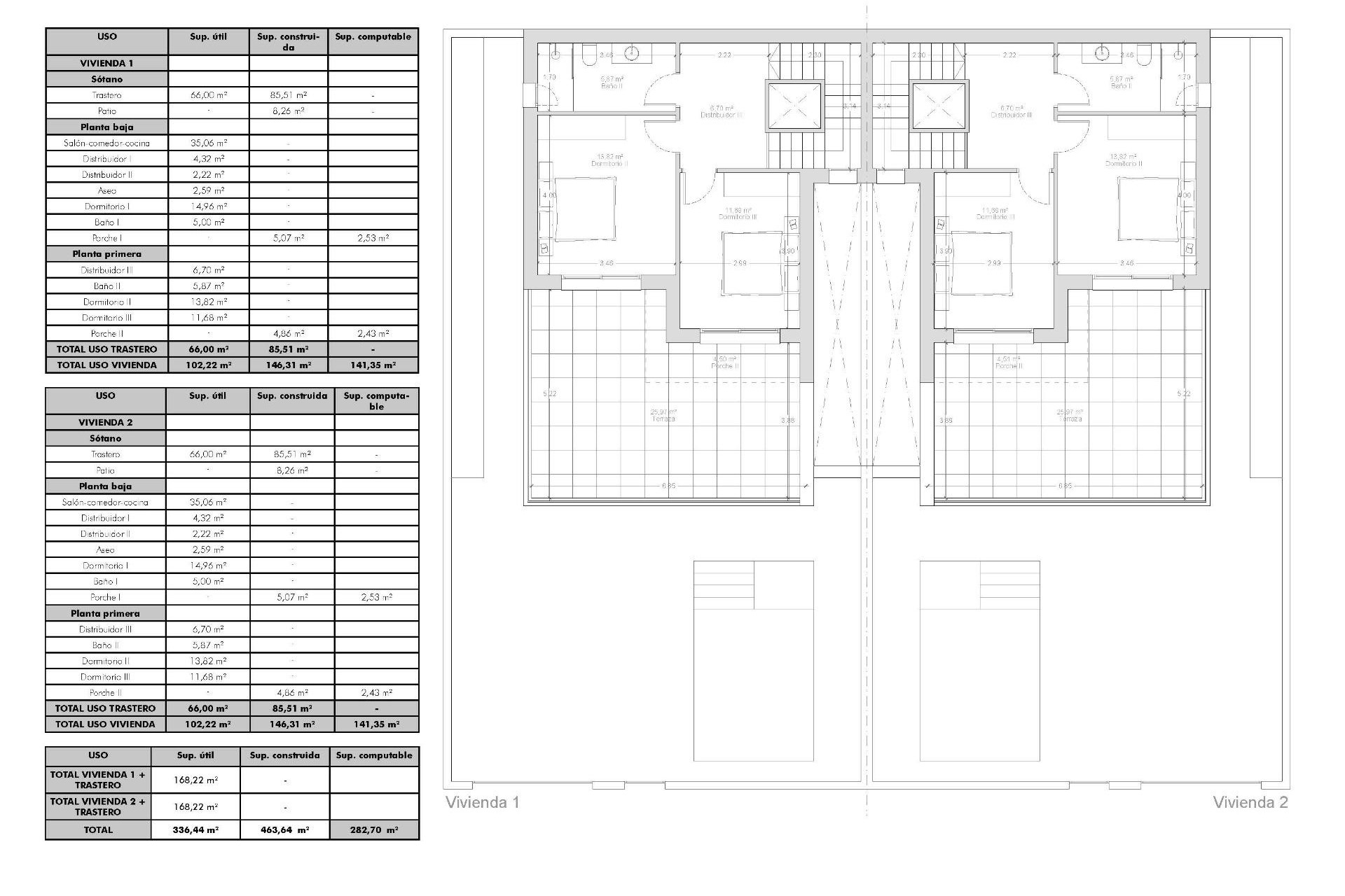
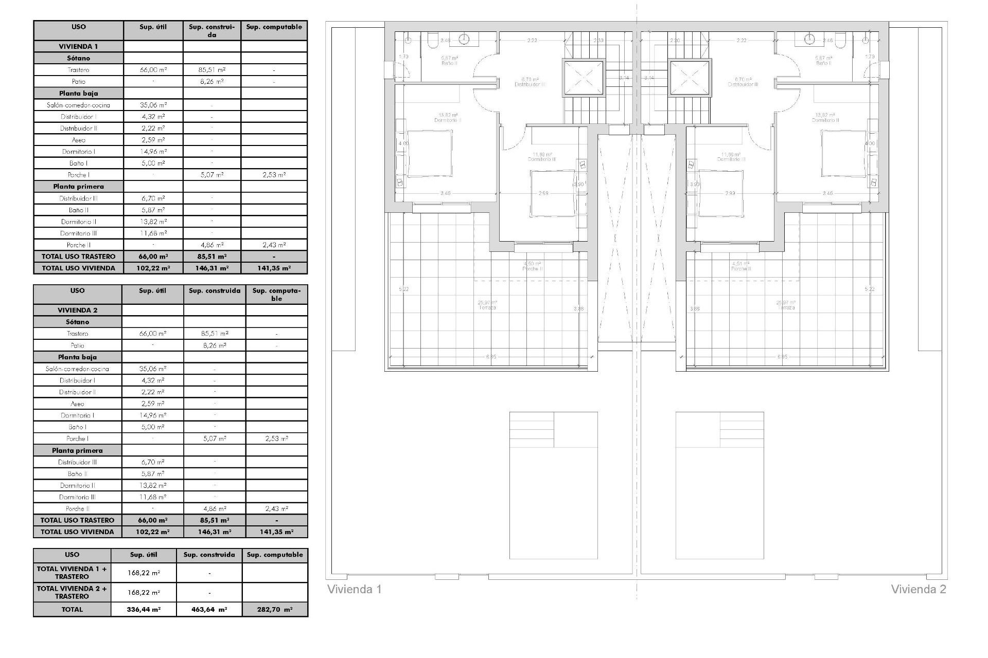
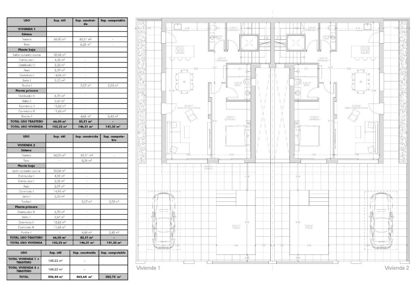
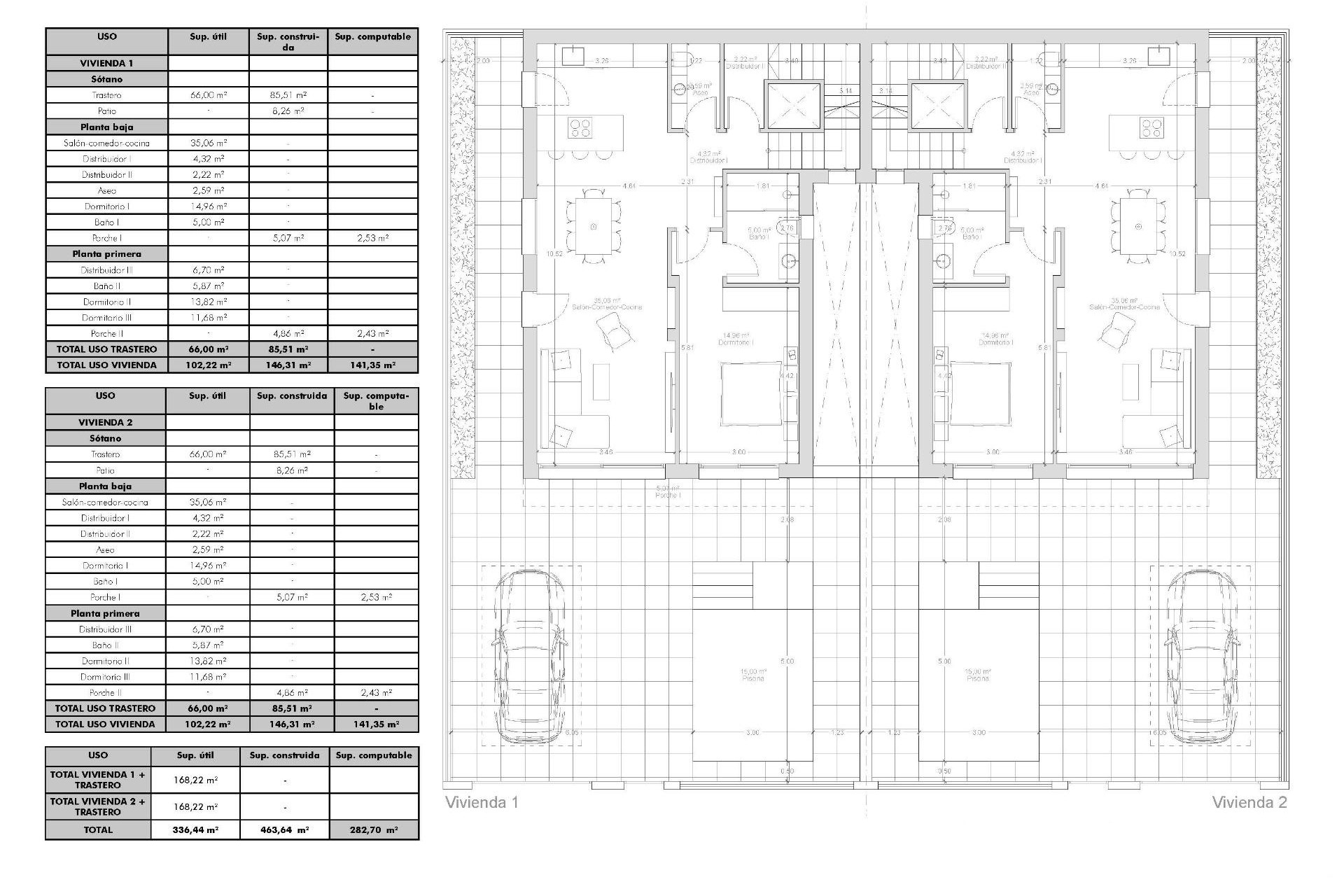
Elke villa is ontworpen in een eigentijdse stijl, waarbij optimaal gebruik is gemaakt van de ruimte en het natuurlijke licht. De indeling omvat drie slaapkamers (één op de begane grond en twee op de eerste verdieping) en drie badkamers (waarvan één in de kelder), waardoor ze perfect zijn voor gezinnen en gasten. De open woonkamer met eethoek loopt naadloos over in de volledig ingerichte keuken, waardoor een warme en functionele omgeving ontstaat. Grote ramen zorgen voor veel lichtinval in het hele huis.
Premium voorzieningen en extra's
Deze villa's onderscheiden zich door hun hoogwaardige afwerking en doordachte details:
66 m2 kelder met badkamer, galerij en wasruimte
Privézwembad, solarium met barbecue en gootsteen
Decoratieve open haard in de woonkamer
Privé parkeerplaats op het perceel
Lift van de kelder naar de bovenste verdieping
3 fotovoltaïsche zonnepanelen en ledverlichting in het hele huis
Voorbereiding voor airconditioning
Volledig ingerichte badkamers met meubels en douchewanden
Perceelgroottes vanaf 200 m2
Levensstijl en omgeving
Benijófar combineert de charme van een traditioneel Spaans dorp met het gemak van moderne voorzieningen. Natuurliefhebbers kunnen genieten van het nabijgelegen natuurpark, dat perfect is om te wandelen en fietsen. Voor golfliefhebbers ligt La Marquesa Golf op slechts 5 km afstand, terwijl er verschillende andere topbanen binnen een straal van 15 km te vinden zijn. Gezinnen kunnen een bezoek brengen aan de waterparken in Rojales (4 km) en Torrevieja (12 km), of de levendige stad Torrevieja zelf verkennen, op slechts 12 km afstand.
Uitstekende verbindingen
De villa's profiteren van een gemakkelijke toegang tot de snelwegen N-332 en AP-7, waardoor u snel in Alicante, Elche, Orihuela Costa en Murcia bent. De omgeving biedt de perfecte balans tussen rust, voorzieningen en bereikbaarheid.
Uw droomhuis aan de Costa Blanca
Ervaar luxe, comfort en het mediterrane leven in deze prachtige nieuwbouwwoningen in Benijófar. Neem vandaag nog contact met ons op voor meer informatie en om een bezichtiging van uw toekomstige woning te regelen.n het leven aan de Costa Blanca te genieten niet. Neem vandaag nog contact met ons op voor een bezichtiging en zet de eerste stap naar jouw droomhuis.
1051