Nieuwbouwappartementen op slechts 100 m van het strand in Lo Pagan, San Pedro del Pinatar
Nieuwbouwappartementen op slechts 100 m van het strand in Lo Pagan, San Pedro del Pinatar
Exclusieve woonwijk aan de kust op een toplocatie
Dit nieuwbouwcomplex bestaat uit slechts 10 moderne appartementen in Lo Pagan San Pedro del Pinatar, op minder dan 100 meter van het strand. Gelegen in een van de meest aantrekkelijke gebieden van de Mar Menor, biedt dit project een perfecte combinatie van comfortabel wonen aan zee en uitstekend investeringspotentieel. Lo Pagan staat bekend om zijn ontspannen sfeer, natuurlijke modderbaden en de nabijheid van zowel de Mar Menor als de Middellandse Zee.
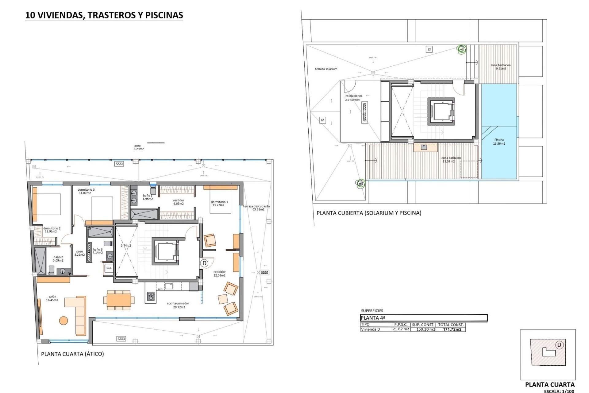
Moderne appartementen en een unieke penthouse-optie
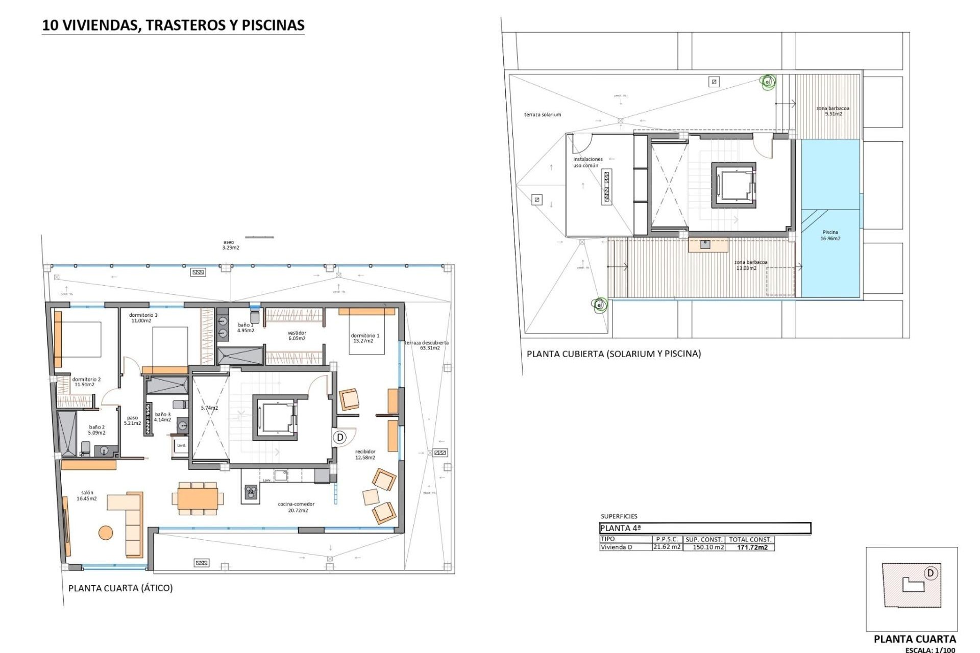
Het project biedt ruime appartementen met twee slaapkamers en twee badkamers, waaronder een hoofdslaapkamer met en suite badkamer. Alle woningen hebben een open keuken die in verbinding staat met lichte woonruimtes, waardoor functionele en uitnodigende ruimtes ontstaan. Het hoogtepunt van het project is een exclusief penthouse met drie slaapkamers en drie badkamers, voorzien van een groot terras, een privé-dakterras en een eigen zwembad, dat een uitzonderlijke levensstijl biedt met privacy en een vrij uitzicht.
Hoogwaardige afwerking en comfortabele voorzieningen
Alle woningen zijn gebouwd volgens hoge normen en zijn voorzien van badkamers met meubilair, verlichte spiegels, elektrische handdoekrekken en doucheschermen. De keukens zijn volledig uitgerust met apparatuur en moderne kasten. Gemotoriseerde jaloezieën en een volledig geïnstalleerd airconditioningsysteem zorgen het hele jaar door voor comfort. Optionele parkeerplaatsen en opslagruimtes zijn tegen meerprijs beschikbaar en bieden extra gemak voor de bewoners.
Aantrekkelijke gemeenschappelijke ruimtes
Het wooncomplex beschikt over een gemeenschappelijk zwembad, ideaal om te ontspannen en te genieten van het mediterrane klimaat. Het beperkte aantal woningen garandeert een rustige en exclusieve omgeving, perfect voor zowel permanent wonen als vakantiegebruik.
Lo Pagan en San Pedro del Pinatar Lifestyle
San Pedro del Pinatar ligt op een bevoorrechte locatie tussen de Mar Menor en de Middellandse Zee, waardoor het een populaire bestemming is voor watersporters en strandliefhebbers. Het gebied biedt jachthavens, watersportclubs en veilige ondiepe wateren, ideaal voor gezinnen. Lo Pagan is beroemd om zijn natuurlijke modderbaden en lange boulevard, met restaurants, cafés en winkels. De stad biedt uitstekende faciliteiten, waaronder sportcentra, een overdekt zwembad en het hele jaar door sociale activiteiten, ondersteund door een mild winterklimaat.
Uitstekende verbindingen en voorzieningen in de buurt
Het winkelcentrum Dos Mares ligt op slechts 2 km afstand en biedt een breed scala aan winkels, restaurants en recreatiemogelijkheden. De jachthaven en de haven van San Pedro del Pinatar liggen op ongeveer 1,5 km van het project. Golfliefhebbers vinden op korte rijafstand verschillende golfbanen, waaronder Lo Romero Golf op ongeveer 10 km.
Belangrijkste afstanden tot bezienswaardigheden
Strand van Lo Pagan: 0,1 km
Jachthaven van San Pedro del Pinatar: 1,5 km
Winkelcentrum Dos Mares: 2 km
Lo Romero Golf: 10 km
Luchthaven Murcia Corvera: 35 km
Luchthaven Alicante: 80 km
Verzeker u vandaag nog van uw huis aan het strand
Neem nu contact met ons op voor meer informatie of om een bezichtiging te regelen van deze exclusieve nieuwbouwappartementen op slechts een steenworp afstand van het strand in Lo Pagan, San Pedro del Pinatar.
1051