Nieuwbouw Woningen » Bungalow » Torrevieja

Bungalow. Nieuwbouw Woningen Torrevieja. Alicante

Ref.  REDSP-30661

259.000

Bungalow. Nieuwbouw Woningen Torrevieja. Alicante

259.000

  • Meters

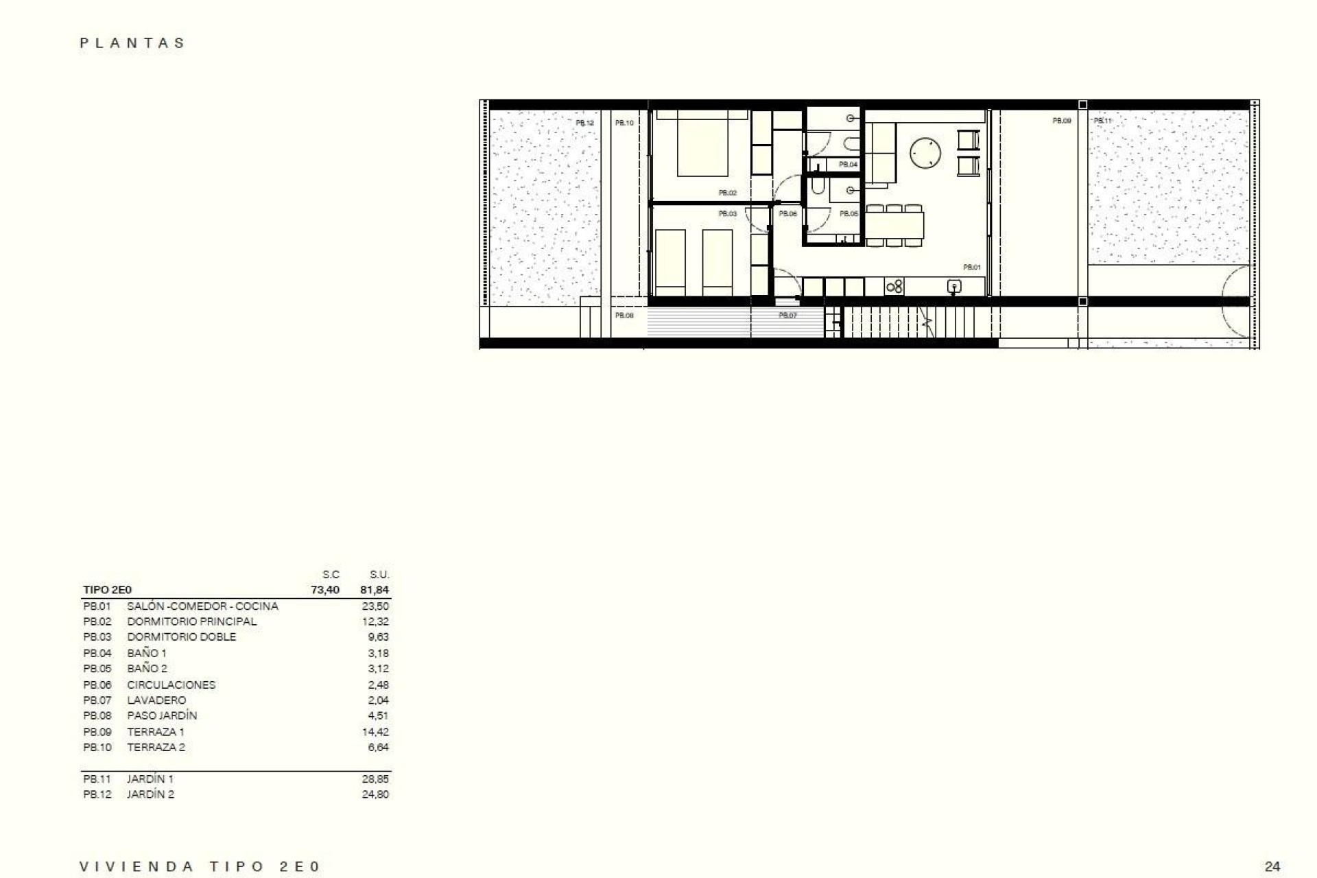
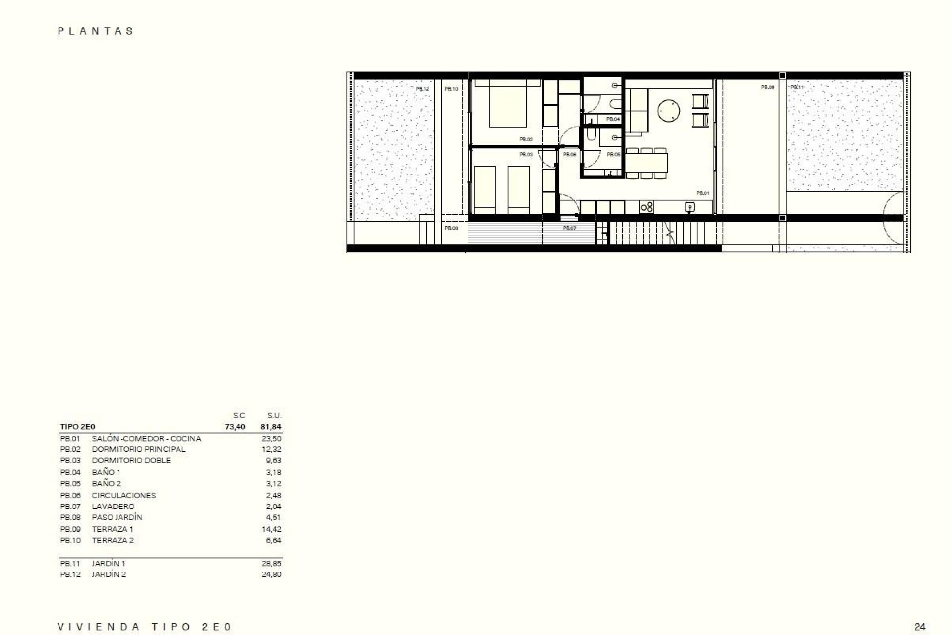
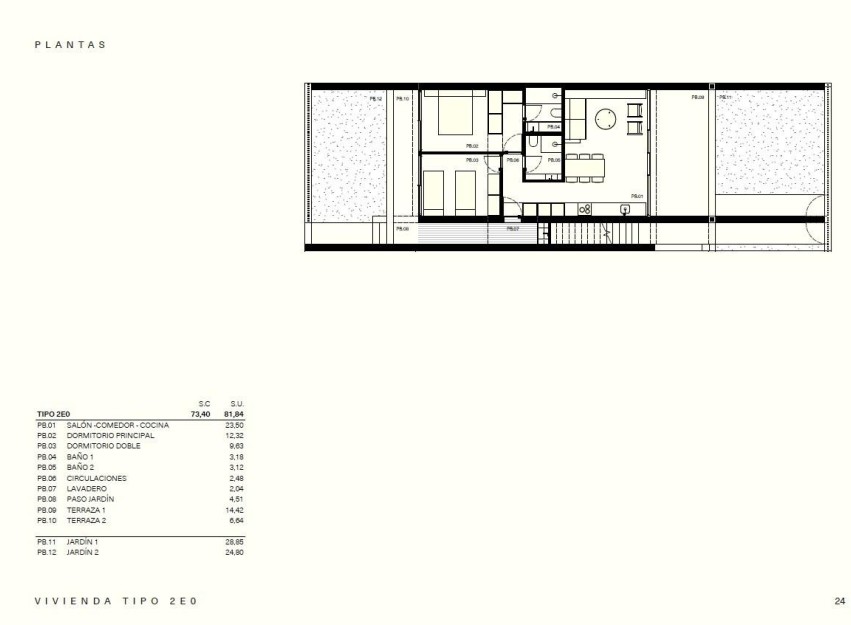
    81m2
  • Perceel

    53m2
  • Slaapkamers

    2
  • Badkamers

    2
  • Zwembad

    Ja

Beschrijving

Kenmerken

Slaapkamers Slaapkamers:

2

Badkamers Badkamers:

2

Gebouwd Gebouwd:

81m2

Nuttig Nuttig:

73m2

Plot Plot:

53m2

Zwembad Zwembad:

Ja

Afstand naar het strand Afstand naar het strand:

3500 Mts.

Garden
Communal Pool
Near Commercial Center
Gated
Near Golf / Golf Resort Property
Near Schools
Air Conditioning: Pre-Installed
Double Bedrooms: 2
Parking - Space
Number of Parking Spaces: 1
Storage / Trastero
Location: Coastal, Urbanisation
Beach: 3500 Meters
Terrace: 20 Msq.
Useable Build Space: 73 Msq.

Kaart

Belcasa

Ontvang meer info

Robby

Robby

Uw agent in Spanje

Je kan ons ook via Whatsapp bereiken

Whatsapp WhatsApp verzenden

Contactformulier

Responsable del tratamiento: Robby Devue, Finalidad del tratamiento: Gestión y control de los servicios ofrecidos a través de la página Web de Servicios inmobiliarios, Envío de información a traves de newsletter y otros, Legitimación: Por consentimiento, Destinatarios: No se cederan los datos, salvo para elaborar contabilidad, Derechos de las personas interesadas: Acceder, rectificar y suprimir los datos, solicitar la portabilidad de los mismos, oponerse altratamiento y solicitar la limitación de éste, Procedencia de los datos: El Propio interesado, Información Adicional: Puede consultarse la información adicional y detallada sobre protección de datos Aquí.
WhatsApp