Appartements touristiques près de la plage à Lo Pagán-San Pedro del Pinatar : une opportunité d'investissement sur la Costa Cálida
Appartements touristiques près de la plage à Lo Pagán-San Pedro del Pinatar : une opportunité d'investissement sur la Costa Cálida
Emplacement privilégié en bord de mer à Lo Pagán
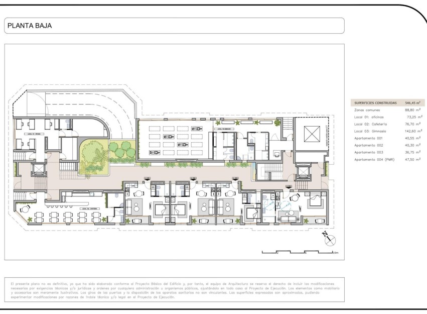
Découvrez ce nouveau complexe de 44 appartements touristiques entièrement meublés situé à Lo Pagán, San Pedro del Pinatar, l'une des destinations les plus prisées de la Costa Cálida. À seulement 800 mètres de la plage, ce complexe résidentiel offre l'équilibre parfait entre détente, art de vivre en bord de mer et potentiel d'investissement. La région est réputée pour sa proximité avec le Mar Menor et la mer Méditerranée, offrant des eaux calmes, des ports de plaisance et un large éventail de sports nautiques. Lo Pagán dispose également d'une promenade animée avec des restaurants, des cafés et des boutiques, ainsi que des célèbres bains de boue naturels qui attirent des visiteurs toute l'année.
Des appartements modernes conçus pour le confort et la flexibilité
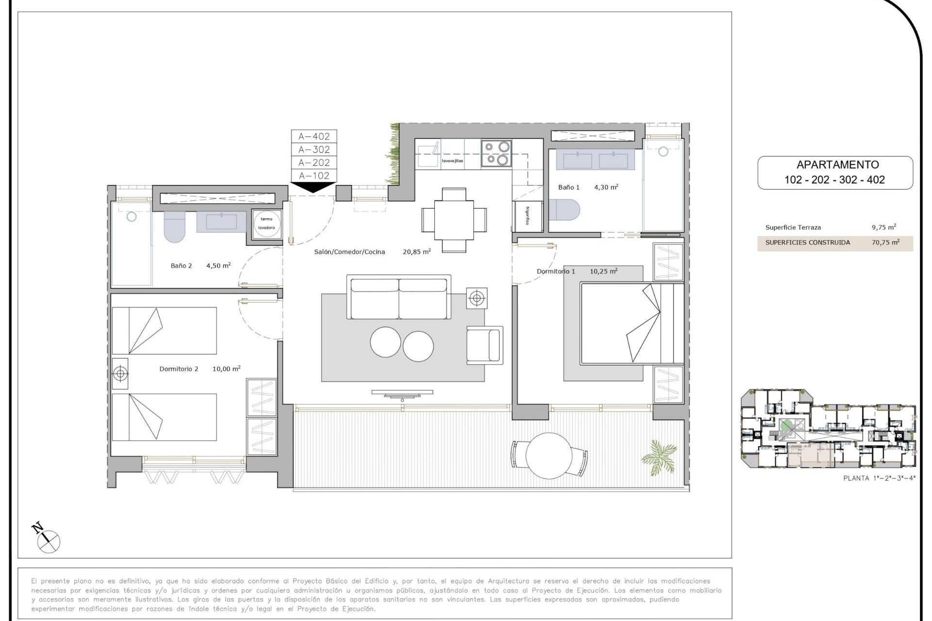
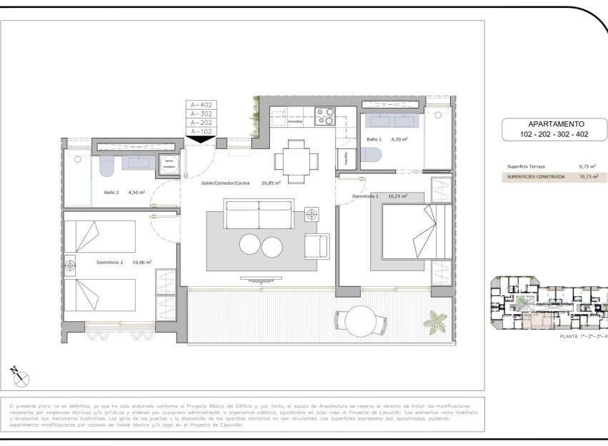
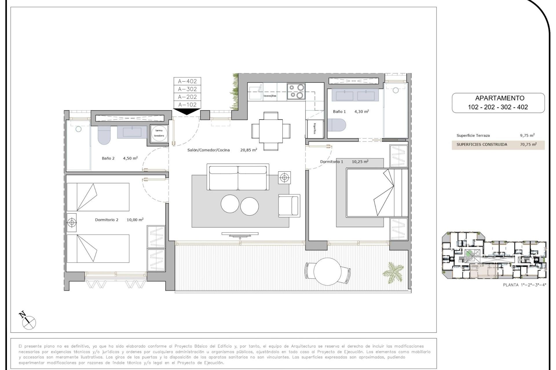
Le complexe propose une variété d'agencements adaptés à différents besoins. Les acheteurs peuvent choisir entre des studios spacieux avec 1 salle de bains et une terrasse, ou des logements plus grands avec 2 chambres et 2 salles de bains, dont une attenante, tous dotés de terrasses extérieures privées. Chaque appartement a été soigneusement conçu pour optimiser le confort, la fonctionnalité et la lumière naturelle.
Tous les logements sont livrés entièrement meublés et équipés d'appareils électroménagers, ce qui les rend prêts à être occupés ou loués immédiatement. Les intérieurs reflètent un style moderne avec des finitions de qualité, garantissant un cadre de vie confortable et élégant à quelques minutes de la mer.
Équipements haut de gamme et habitat intelligent
Ces appartements comprennent une climatisation centralisée entièrement installée, un système aérothermique pour l'eau chaude et des salles de bains entièrement équipées avec mobilier, miroirs et parois de douche. De plus, l'immeuble et les logements individuels bénéficient de systèmes de serrures intelligentes, renforçant ainsi la sécurité et le confort. Certains logements comprennent également des places de parking souterraines ou extérieures et des débarras, selon la propriété.
Des équipements de style resort pour la détente et le bien-être
Les résidents et leurs invités peuvent profiter d’excellentes installations communes, notamment d’une piscine sur le toit avec solarium, parfaite pour se détendre sous le soleil méditerranéen. Le complexe dispose également d’une salle de sport et d’un café sur place, créant un environnement confortable et convivial, idéal aussi bien pour les vacances que pour les séjours de longue durée.
Excellente connectivité et points d’intérêt à proximité
Plage de Lo Pagán 0,8 km
Mar Menor 0,8 km
Centre de San Pedro del Pinatar 2 km
Centre commercial Dos Mares 3 km
Golf de Lo Romero 10 km
Aéroport international de Murcie 35 km
Aéroport d'Alicante 75 km
Port de plaisance de San Pedro 2 km
Un investissement intelligent avec gestion locative
Ces appartements touristiques offrent une excellente opportunité d'investissement, avec une TVA déductible et une société de gestion professionnelle qui s'occupe des locations lorsque le bien n'est pas utilisé. Cela garantit une expérience de propriété sans tracas et des rendements locatifs attractifs.
Assurez-vous une propriété sur la Costa Cálida
Que vous recherchiez une résidence secondaire, un investissement locatif ou les deux, ces appartements à Lo Pagán offrent emplacement, qualité et rentabilité. Contactez-nous dès aujourd'hui pour plus d'informations ou pour organiser une visite et vous assurer votre nouvelle propriété en bord de mer.
1051