APPARTEMENTS NEUFS DANS UN COMPLEXE PRIVÉ FERMÉ DANS LA PROVINCE DE MURCIE
APPARTEMENTS NEUFS DANS UN COMPLEXE PRIVÉ FERMÉ DANS LA PROVINCE DE MURCIE
Complexe résidentiel neuf de 6 blocs, soit un total de 42 appartements.
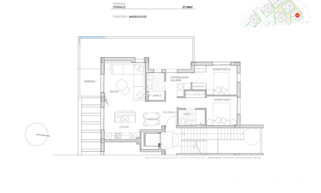
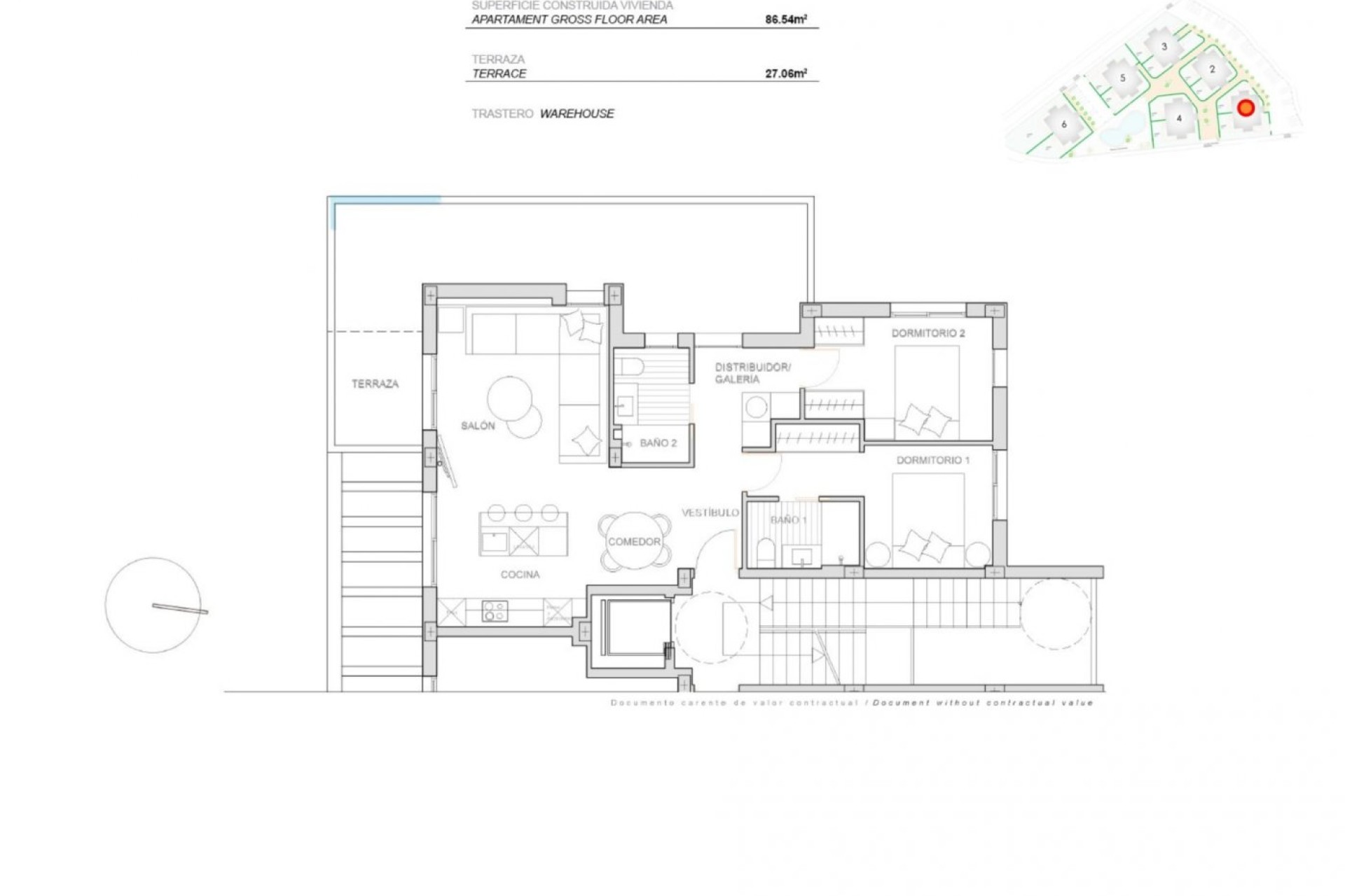
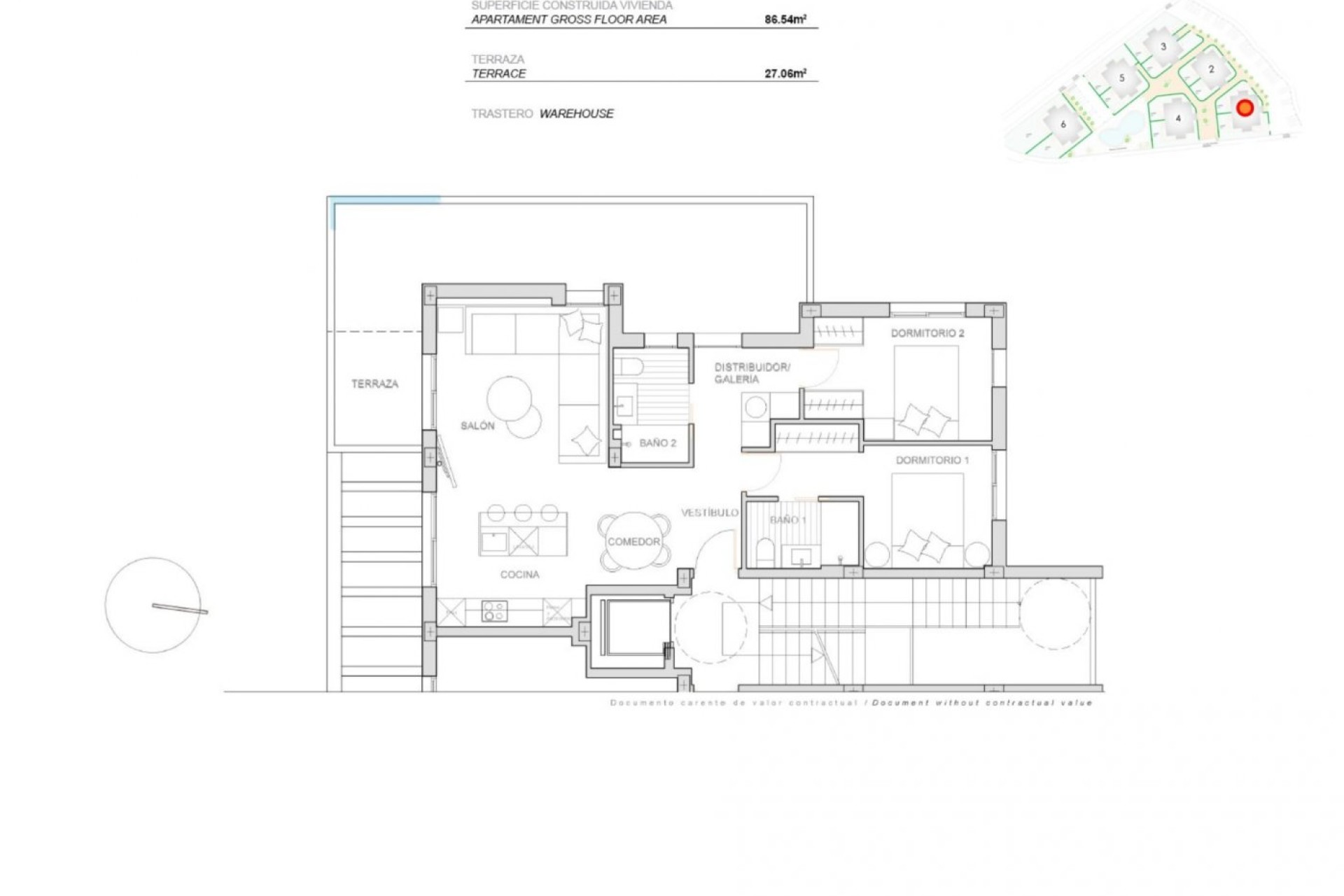
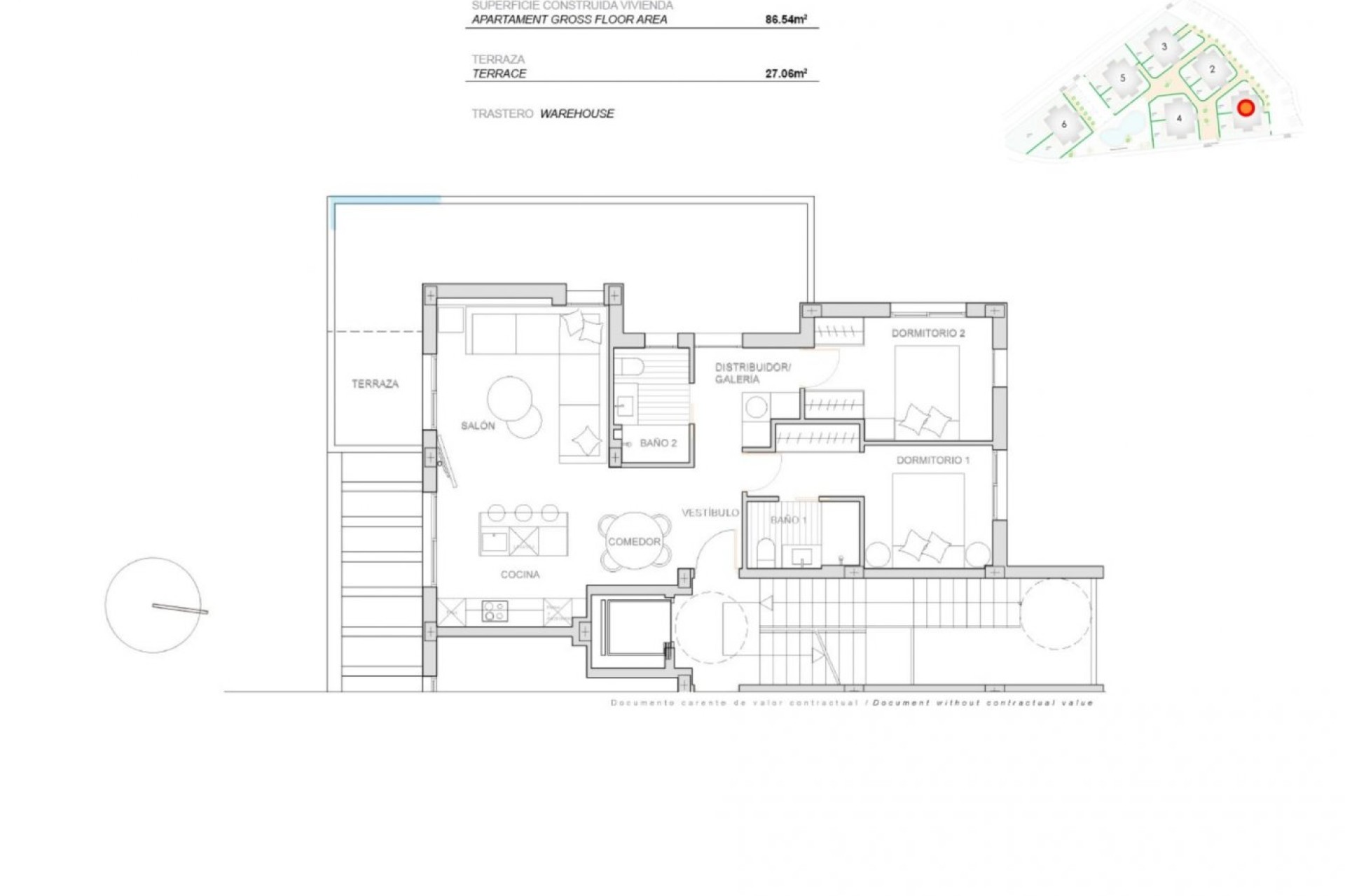
Les beaux appartements ont 3 et 2 chambres à coucher et 2 salles de bains avec vue sur le grand lac et les espaces verts de ce grand complexe de luxe.
Appartements au rez-de-chaussée avec jardin privé, appartements au dernier étage avec solarium privé.
Le complexe dispose d'une piscine commune et tous les appartements ont une place de parking et une salle de stockage.
Situé dans un complexe privé, avec une entrée principale et une sécurité 24 heures sur 24. Le complexe est conçu autour d'un impressionnant espace vert de 126.000 m2.
Il comprend des sentiers pédestres et des pistes cyclables, des installations sportives, des courts de paddle et de tennis, un mini-golf, des jardins, des parcs pour chiens, des zones de loisirs, un clubhouse..... Dans la zone centrale se trouve également le joyau de la station, un lac artificiel cristallin de près de 17 000 m2 de surface d'eau, entouré de plages de sable blanc et de palmiers, apportant un morceau des Caraïbes dans la région de Murcie.
Il y a 2 îles dans le lac, l'une d'entre elles a son propre bar, il y a aussi des "Chiringuitos de plage" répartis autour du lac.
La station est stratégiquement située à moins de 4 km de la plage et de la ville de Los Alcázares, où vous pouvez pratiquer divers sports nautiques, entourée de plusieurs terrains de golf et de la ville de Cartagena à moins de 15 minutes en voiture et à 22 km de l'aéroport de Murcie, ayant ainsi une large offre culturelle, gastronomique et sportive à portée de main.
1051