Villa neuve à vendre à Calpe – Design moderne à seulement 900 m de la plage
Villa neuve à vendre à Calpe – Design moderne à seulement 900 m de la plage
Villa neuve exclusive dans un quartier résidentiel privilégié de Calpe
Située dans l'un des quartiers résidentiels les plus prisés de Calpe, cette villa neuve offre une combinaison parfaite entre confort moderne, intimité et proximité du centre-ville et des plages. À seulement 900 mètres du littoral et à quelques minutes de tous les services essentiels, cette propriété se trouve à la périphérie de la ville, dans un environnement calme et sécurisé.
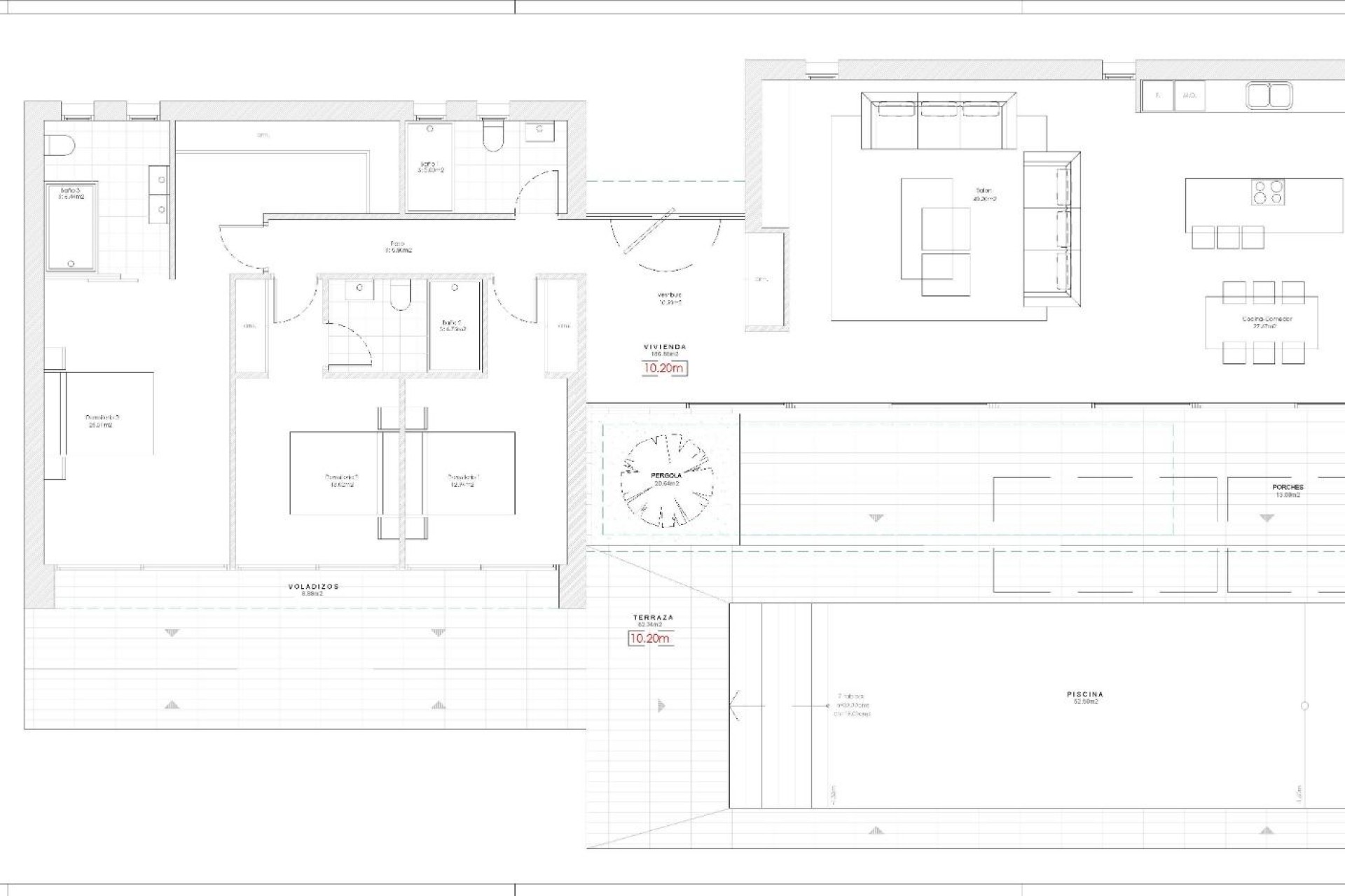
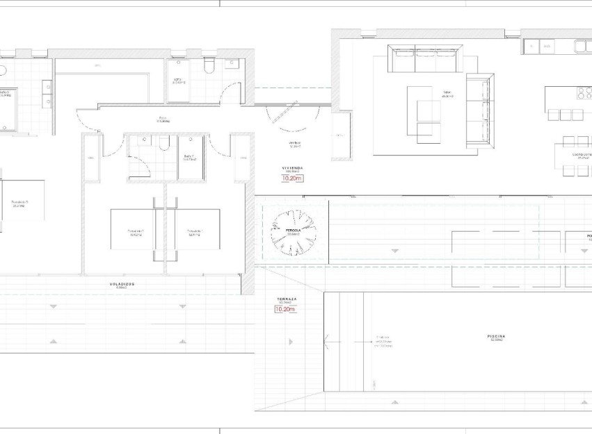
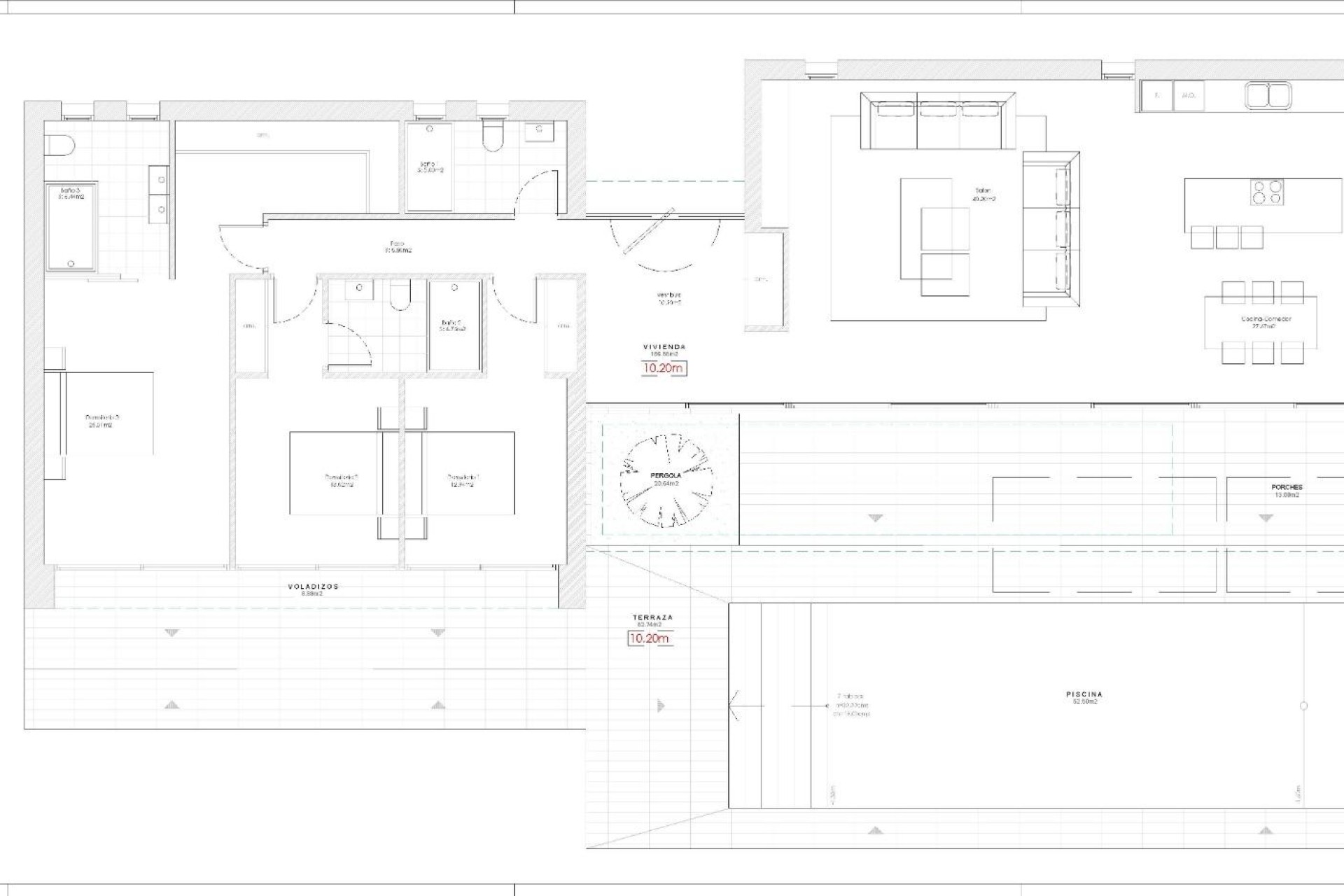
Habitat de plain-pied avec agencement ouvert
Conçue pour être pratique et facile à vivre, la villa est répartie sur un seul étage, ce qui la rend idéale pour les familles et les retraités. L'entrée donne sur un hall lumineux qui s'ouvre sur un spacieux salon/salle à manger ouvert avec une cuisine moderne équipée d'un îlot et d'une buanderie séparée. De grandes portes coulissantes relient l'intérieur à un porche couvert avec un barbecue intégré, une grande terrasse et une piscine privée de 52 m².
Trois chambres et quatre salles de bains pour un confort maximal
L'espace nuit est intelligemment aménagé dans l'aile droite de la maison et comprend :
Une suite parentale avec dressing et salle de bains attenante
Une deuxième chambre avec salle de bains attenante
Une troisième chambre avec accès à une salle de bains complète dans le couloir
Une salle de bains supplémentaire avec accès extérieur, conçue pour desservir la piscine
Finitions luxueuses et spécifications de haute qualité
Cette villa est construite selon les normes les plus strictes et comprend :
Chauffage au sol et climatisation centrale entièrement installée
Système domotique intelligent
Système d'alarme pour une sécurité renforcée
Menuiserie extérieure haut de gamme avec rupture de pont thermique et stores motorisés dans les chambres
Meubles de cuisine design avec appareils électroménagers intégrés
Jardin paysager avec haies de cyprès pour plus d'intimité
Parking privé fermé pour deux véhicules
Découvrez Calpe et ses environs
Calpe est un joyau côtier de la région de la Marina Alta, dans la province d'Alicante, connu pour son mélange de charme valencien et de commodités modernes. La ville abrite trois belles plages de sable, l'emblématique rocher Peñón de Ifach et deux clubs nautiques : le Real Club Náutico de Calpe et le Club Náutico Puerto Blanco.
Distances vers les principaux points d'intérêt :
Plage : 0,9 km
Centre-ville de Calpe : 1,5 km
Altea : 11 km
Benidorm : 22 km
Golf Ifach : 9 km
Aéroport d'Alicante : 78 km (environ 1 heure)
Aéroport de Valence : 130 km (environ 1 heure et demie)
Votre maison idéale au cœur de la Costa Blanca
Découvrez le meilleur de la vie méditerranéenne. Contactez-nous dès aujourd'hui pour organiser une visite et faire de cette magnifique villa à Calpe votre prochaine maison.
1051