Villas neuves exclusives dans la zone du terrain de golf d'Algorfa
Villas neuves exclusives dans la zone du terrain de golf d'Algorfa
Découvrez ces superbes villas neuves à Algorfa, nichées dans le cadre serein de l'un des plus prestigieux complexes de golf d'Espagne, La Finca Golf & Spa Resort. Situé dans le sud de la province d'Alicante, ce complexe exclusif allie un mode de vie luxueux aux avantages d'un centre de villégiature, créant ainsi la maison idéale pour les amateurs de golf et ceux qui recherchent un mode de vie méditerranéen décontracté.
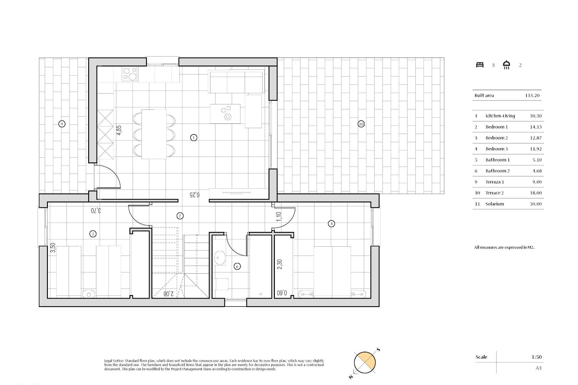
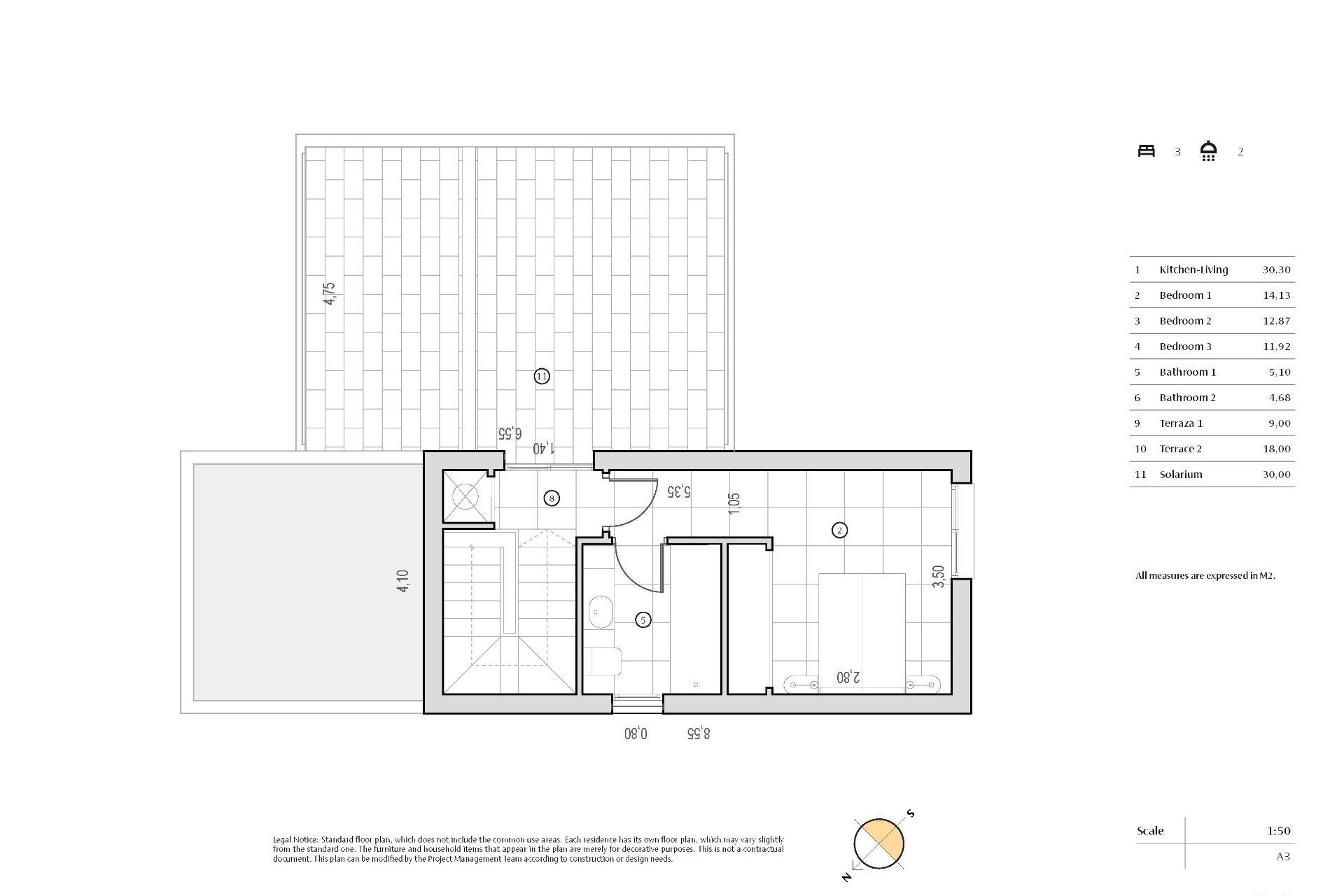
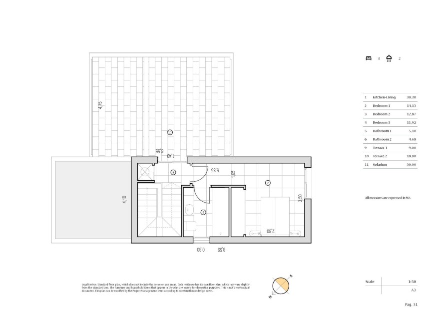
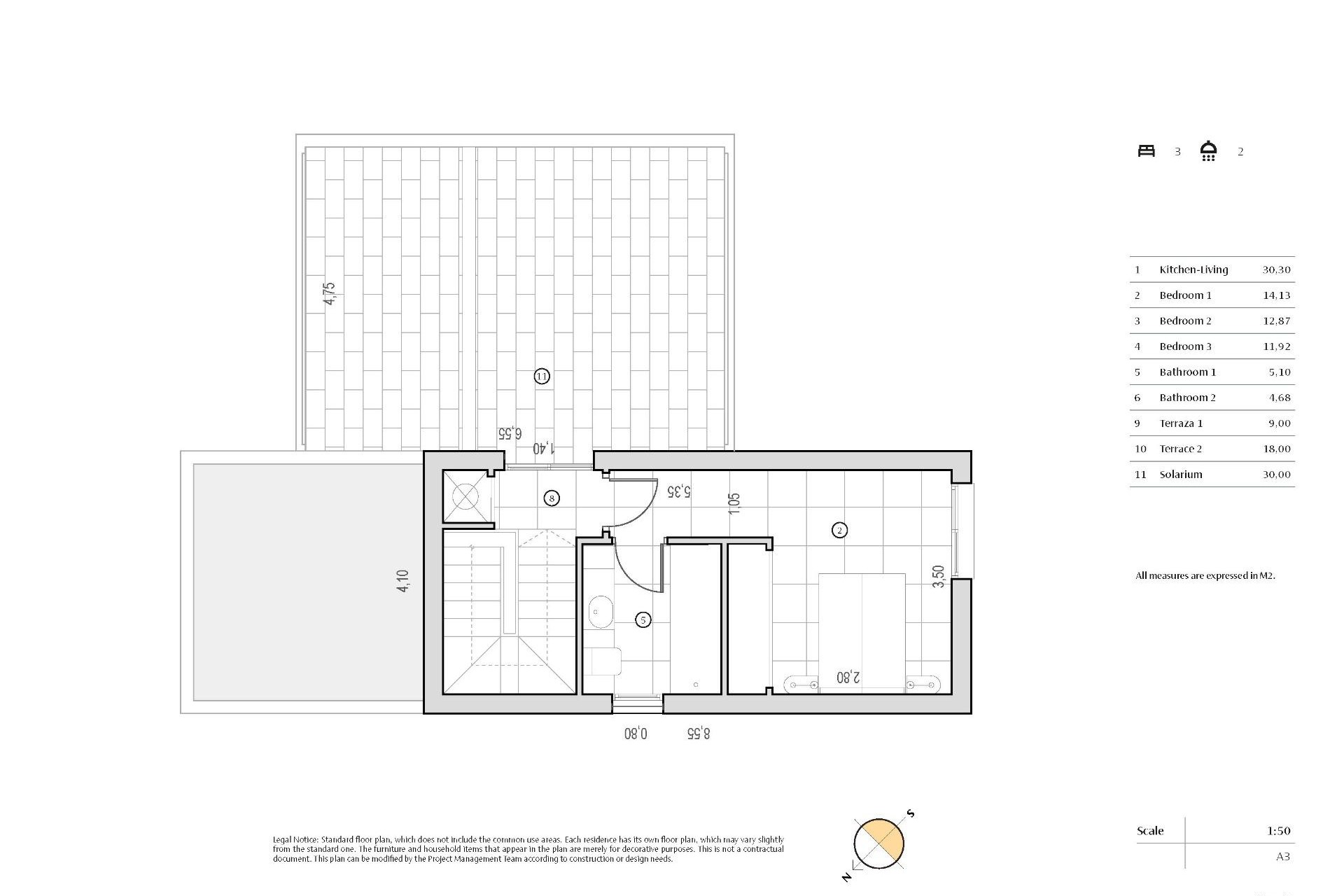
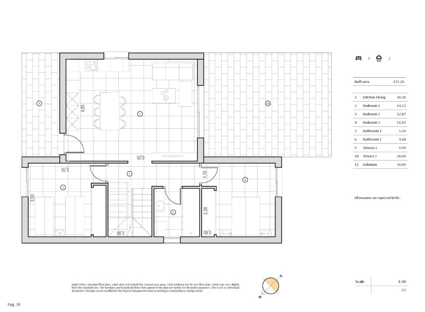
Elégantes villas de 3 chambres avec piscine privée et design moderne
Chaque villa est conçue avec soin sur deux étages spacieux, avec 3 chambres et 2 salles de bains. La cuisine ouverte se fond parfaitement dans l'espace de vie, où de grandes fenêtres et des portes coulissantes en verre offrent une lumière naturelle abondante et un accès direct à la terrasse et à la piscine privée. Une place de parking privée pratique est incluse sur le terrain, ce qui renforce la facilité et l'exclusivité de ces maisons.
Caractéristiques haut de gamme et technologie de la maison intelligente
Ces villas sont dotées d'une gamme de caractéristiques haut de gamme pour offrir un maximum de confort et de sécurité. Elles sont dotées d'un parking intérieur privé, de volets électriques, d'un système de climatisation et d'un système domotique sophistiqué. En outre, un système d'alarme entièrement équipé garantit la tranquillité d'esprit. L'orientation sud/sud-ouest permet un éclairage naturel optimal tout au long de l'année, réduisant la consommation d'énergie en apportant chaleur et luminosité du lever au coucher du soleil.
Des espaces de vie lumineux et ouverts avec des touches traditionnelles
Conçues selon un concept ouvert, ces maisons utilisent de grandes fenêtres et des portes coulissantes pour favoriser la ventilation croisée, gardant les intérieurs frais et remplis de lumière naturelle. La conception architecturale associe une esthétique moderne à des éléments traditionnels, tels que des accents de pierre sur la façade et des détails en bois, créant ainsi une atmosphère chaleureuse et accueillante. Avec un classement EPC A, ces villas offrent une efficacité énergétique et une durabilité qui en font un choix respectueux de l'environnement pour les propriétaires.
Situation privilégiée avec accès aux plages et aux principales attractions
Situées dans la ville bien établie d'Algorfa, ces villas se trouvent à une courte distance en voiture des plages immaculées de Guardamar et de Torrevieja, où vous pourrez profiter de plus de 300 jours de soleil par an. À proximité, vous trouverez des centres commerciaux, des restaurants gastronomiques et des lieux de divertissement animés. L'excellente infrastructure et la proximité des grands axes routiers, dont l'autoroute AP-7, permettent de rejoindre facilement des destinations populaires comme Orihuela, Elche, Murcia et Alicante. L'aéroport d'Alicante n'est qu'à 40 km et celui de Murcie à 55 km, ce qui facilite les déplacements.
Votre maison de rêve méditerranéenne vous attend - Contactez-nous dès aujourd'hui
Ne manquez pas cette opportunité de posséder une luxueuse villa dans la plus prestigieuse station de golf d'Algorfa. Découvrez le mélange parfait de confort moderne, de charme traditionnel et de style de vie méditerranéen. Contactez-nous dès maintenant pour organiser une visite et découvrir la maison de vos rêves.
1051