Villas exclusives de construction récente à Algorfa, près de La Finca Golf Resort
Villas exclusives de construction récente à Algorfa, près de La Finca Golf Resort
Une vie paisible dans un emplacement de choix
Découvrez ces luxueuses villas neuves dans la ville pittoresque d'Algorfa, nichées sur de vastes parcelles rustiques de plus de 10 000 m². Situées à seulement 2 km de La Finca Golf Resort et à proximité de l'Almoradí Tennis Club, ces propriétés sont conçues pour ceux qui apprécient l'intimité, l'élégance et la proximité d'équipements de loisirs de premier plan.
Située au cœur de la Costa Blanca Sud, Algorfa offre un cadre serein entouré par la nature, avec un accès facile au sable doré de la plage de Guardamar, à une courte distance en voiture. Cette situation idyllique garantit un mode de vie alliant détente et commodité.
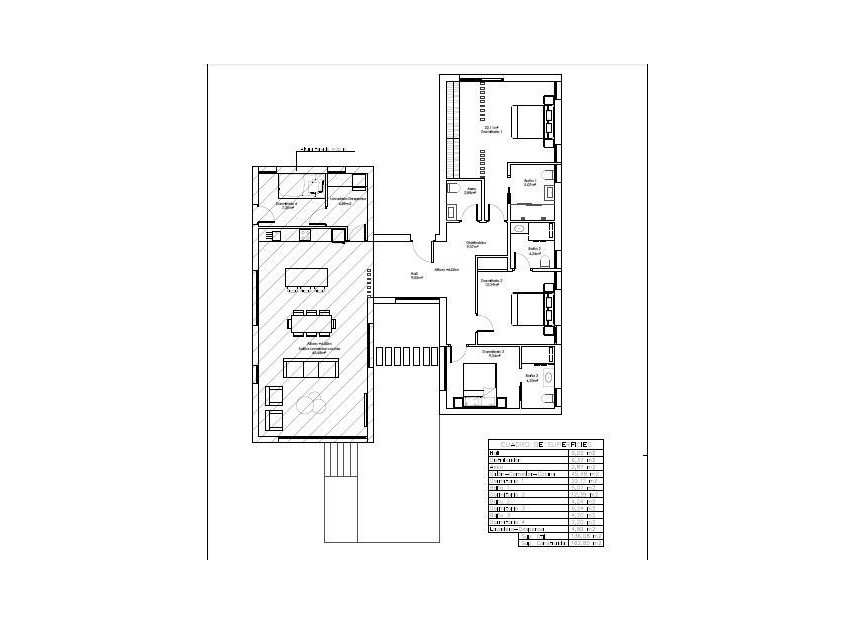
Villas spacieuses de 4 chambres avec options de personnalisation
Ces élégantes villas disposent de quatre chambres spacieuses, avec la possibilité d'ajouter une cinquième chambre, un solarium ou un niveau souterrain moyennant un supplément. Conçues dans un esprit d'ouverture, les maisons bénéficient des caractéristiques suivantes
Une cuisine moderne parfaitement intégrée à l'espace de vie.
De grandes fenêtres et des portes coulissantes en verre pour une lumière naturelle abondante et une bonne ventilation.
Un accès direct à une terrasse privée et à une piscine, parfaites pour profiter des journées méditerranéennes ensoleillées.
Un parking privé sur le terrain pour plus de commodité.
Des équipements haut de gamme pour un confort moderne
Chaque villa est dotée de finitions de haute qualité et d'équipements de pointe pour assurer un maximum de confort et de durabilité :
Éclairage LED dans toutes les pièces.
Stores électriques motorisés pour une plus grande facilité d'utilisation.
Portail d'entrée automatisé pour une sécurité accrue.
Chauffe-eau aérothermique Ariston pour une meilleure efficacité énergétique.
Chauffage au sol dans les salles de bains pour plus de luxe.
Piscine privée pour la détente et le divertissement.
Système de panneaux solaires pour une vie respectueuse de l'environnement.
Système de climatisation complet.
Interphone vidéo pour la commodité et la sécurité.
Proximité des principaux centres d'intérêt
Ces villas sont idéalement situées pour permettre l'accès aux commodités et attractions essentielles :
La Finca Golf Resort : 2 km.
Plage de Guardamar : 12 km (environ 15 minutes en voiture).
Aéroport d'Alicante : 40 km (35 minutes en voiture).
Aéroport de Murcie : 55 km (45 minutes en voiture).
Centres commerciaux : Zenia Boulevard, à 25 minutes.
Routes principales : L'autoroute AP-7 permet d'accéder rapidement aux villes voisines comme Orihuela, Elche, Murcia et Alicante.
Votre retraite méditerranéenne vous attend
Saisissez l'opportunité de posséder une luxueuse villa à Algorfa, alliant design moderne, charme traditionnel et style de vie méditerranéen décontracté. Contactez-nous dès aujourd'hui pour planifier une visite et commencer à vivre votre rêve !
1051