Villas neuves avec vue sur la mer à Finestrat-Benidorm
Villas neuves avec vue sur la mer à Finestrat-Benidorm
Complexe résidentiel exclusif avec vue sur la mer et la ville de Benidorm.
Ensemble de seulement 7 villas individuelles nouvellement construites à Finestrat-Benidorm, offrant des vues panoramiques époustouflantes sur la mer Méditerranée et la ligne d'horizon de Benidorm. Ces propriétés modernes disposent de 3 chambres à coucher, 2 salles de bains et 1 toilette sur un seul étage, avec la possibilité d'ajouter un sous-sol pour un coût supplémentaire.
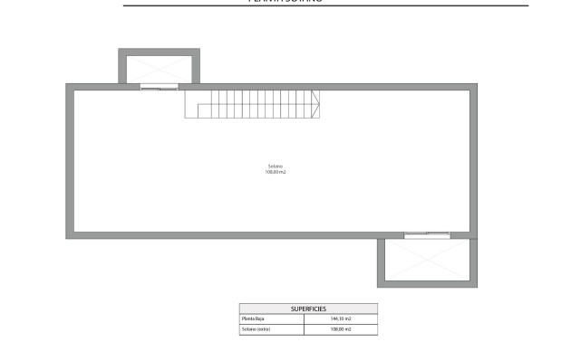
Si vous choisissez d'ajouter le sous-sol, il bénéficiera d'une ventilation naturelle et d'une ventilation croisée grâce à deux patios anglais sur les côtés opposés, vous pourrez ajouter une chambre et une salle de bains supplémentaires et vous pourrez également ajouter une salle de jeux, un bureau, une salle de cinéma ou tout ce que les futurs propriétaires voudront concevoir.
Les propriétés disposent de parcelles privées de plus de 500 m2 avec piscine privée, parking et vue sur la mer.
Construites avec des matériaux de haute qualité, ces maisons profitent au maximum de la lumière naturelle tout au long de la journée et disposent de grandes terrasses pour profiter des plus de 320 jours d'ensoleillement par an à Alicante.
Situation privilégiée à proximité du meilleur de la Costa Blanca
Ce complexe résidentiel exclusif est situé à proximité de quelques-unes des meilleures plages, zones commerciales et installations de loisirs de la Costa Blanca.
Distances des principaux sites :
Plages (Levante, Poniente, Cala de Finestrat) - 4 km.
Terrains de golf (Sierra Cortina, Villaitana) - 1 km.
Centre ville de Benidorm - 5 minutes en voiture.
Aéroport international d'Alicante - 40 km (30 minutes en voiture).
Liaison ferroviaire à grande vitesse (AVE) - 30 minutes.
La zone offre une excellente connectivité et est entourée de services essentiels tels que des hôpitaux, des écoles, des transports publics, des centres commerciaux et des restaurants.
Des caractéristiques haut de gamme pour le confort et la qualité
Chaque propriété comprend
Une place de parking à l'intérieur de la parcelle.
Porte de sécurité renforcée.
Fenêtres en PVC à rupture de pont thermique et double vitrage.
Pré-installation de l'air conditionné.
Système aérothermique pour l'eau chaude.
Piscine privée de 36m2.
Une opportunité unique d'investissement et de qualité de vie
Situé dans la magnifique région de Marina Baixa, Finestrat offre un cadre tranquille tout en étant à quelques minutes de l'animation de Benidorm. Profitez du meilleur des deux mondes : détendez-vous dans un environnement serein tout en ayant accès aux principales attractions telles que Terra Mitica, Aqualandia, Mundomar et Terra Natura.
La proximité des plages, des terrains de golf et des activités de plein air telles que la randonnée à Puig Campana en fait l'un des meilleurs endroits pour investir sur la Costa Blanca.
Ne manquez pas cette opportunité unique ! Contactez-nous dès aujourd'hui pour planifier une visite et trouver la maison de vos rêves à Finestrat-Benidorm.
1051