Villas modernes neuves avec piscine privée en option à Pilar de la Horadada
Villas modernes neuves avec piscine privée en option à Pilar de la Horadada
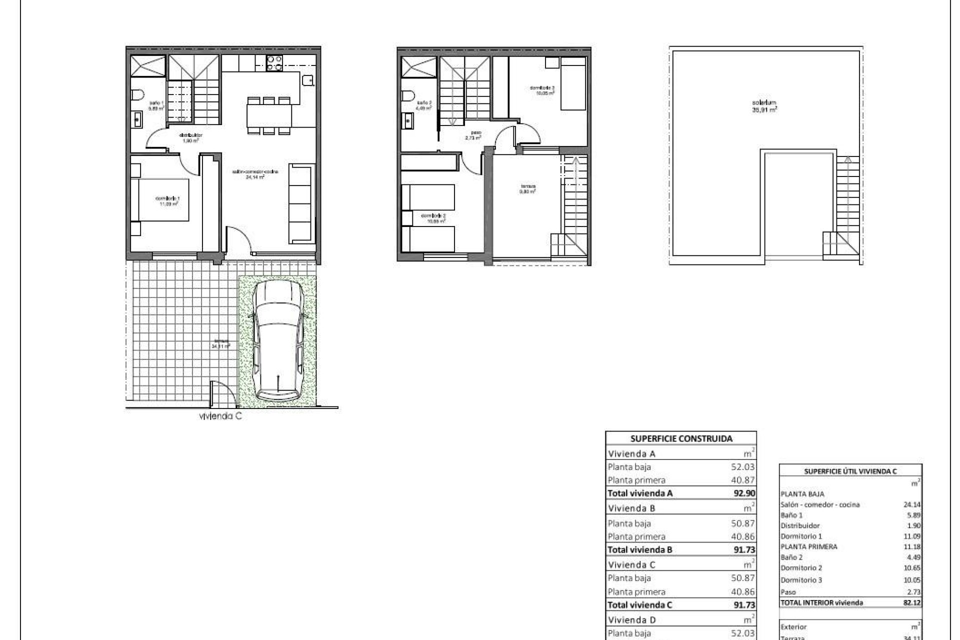
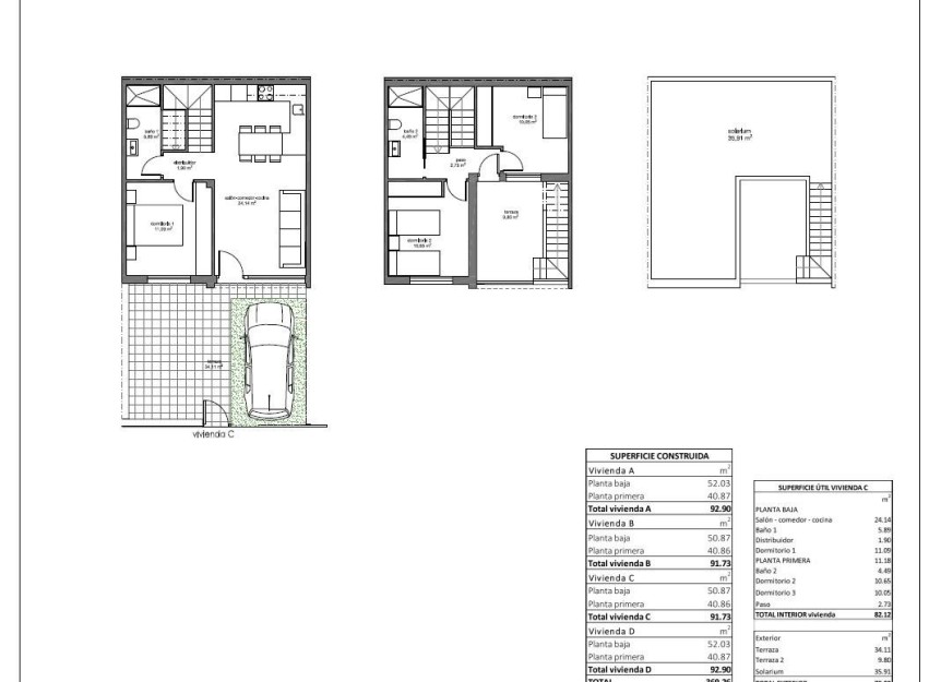
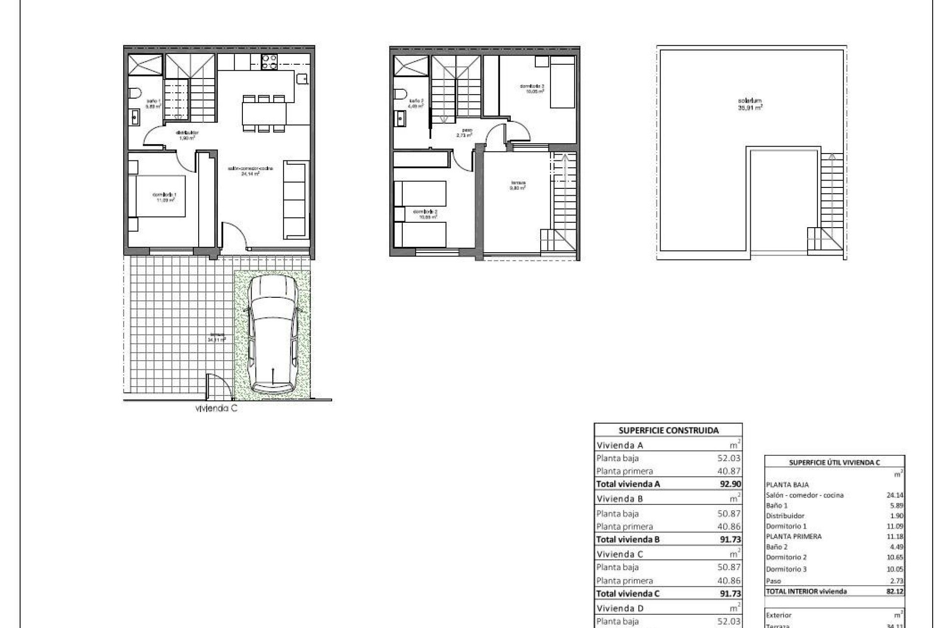
Lotissement exclusif de 4 maisons contemporaines
Cette collection limitée de quatre villas jumelées et mitoyennes récemment construites est située dans un quartier paisible de Pilar de la Horadada, à quelques minutes du centre-ville et à 3 km des plages de la Méditerranée. Conçues dans un souci de confort, de style et d'efficacité énergétique, chaque maison offre un espace de vie spacieux avec la possibilité d'ajouter une piscine privée et un parking sur le terrain.
Design élégant et vie en plein air
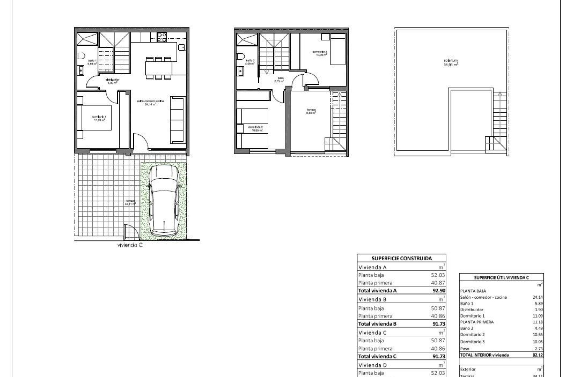
Chaque villa comprend trois chambres et deux salles de bains complètes, judicieusement réparties dans un intérieur lumineux et ouvert. Un jardin privé et un grand solarium sur le toit avec pré-installation pour une cuisine extérieure offrent des espaces parfaits pour profiter du soleil de la Costa Blanca tout au long de l'année. La piscine privée en option ajoute un niveau de confort supplémentaire pour se détendre ou recevoir.
Caractéristiques et finitions de haute qualité
Les maisons sont équipées de matériaux et de finitions modernes pour garantir une qualité et un confort durables :
Porte d'entrée blindée pour plus de sécurité
Menuiserie extérieure en PVC avec rupture de pont thermique pour une meilleure isolation
Salles de bains entièrement équipées avec pare-douche
Chauffage au sol dans les salles de bains pour plus de confort
Système aérothermique pour l'eau chaude sanitaire
Climatisation préinstallée dans toute la maison
Vivez à Pilar de la Horadada : une ville pleine de charme
Pilar de la Horadada est une ville espagnole traditionnelle connue pour son atmosphère conviviale et ses excellentes infrastructures. La ville offre tout ce dont vous avez besoin pour la vie quotidienne, notamment des supermarchés, des restaurants, des boutiques et de charmantes places. Une courte promenade vous mènera au centre animé, où vous pourrez déguster des tapas locales, assister à des événements culturels et profiter des marchés hebdomadaires.
Proche des plages, du golf et des services
Plages de Torre de la Horadada et Mil Palmeras : 3 km (5 minutes)
Centre commercial La Zenia Boulevard : 15 km (15 minutes)
Lo Romero Golf : 7 km (10 minutes)
Aéroport de Corvera Murcia : 40 km (40 minutes)
Aéroport international d'Alicante : 55 km (55 minutes)
Sécurisez dès maintenant votre propriété sur la Costa Blanca
Que vous recherchiez une résidence principale, une maison de vacances ou un bien d'investissement, ces nouvelles maisons à Pilar de la Horadada offrent un emplacement imbattable, des équipements modernes et un style de vie méditerranéen. Contactez-nous dès aujourd'hui pour plus de détails ou pour planifier votre visite.
1051