Maisons mitoyennes neuves en première ligne du golf La Serena à Los Alcázares
Maisons mitoyennes neuves en première ligne du golf La Serena à Los Alcázares
Emplacement privilégié près du golf et de la mer
Découvrez un lotissement résidentiel exclusif de 31 maisons mitoyennes neuves situées en première ligne du golf La Serena à Los Alcázares, à seulement 600 m de la Mar Menor. Situé au cœur de la Costa Cálida, cet emplacement privilégié combine golf, plage et style de vie méditerranéen. Avec toutes les commodités à proximité et un excellent accès routier, c'est l'endroit idéal pour les vacances et pour y vivre toute l'année.
Maisons modernes avec piscine privée et solarium sur le toit
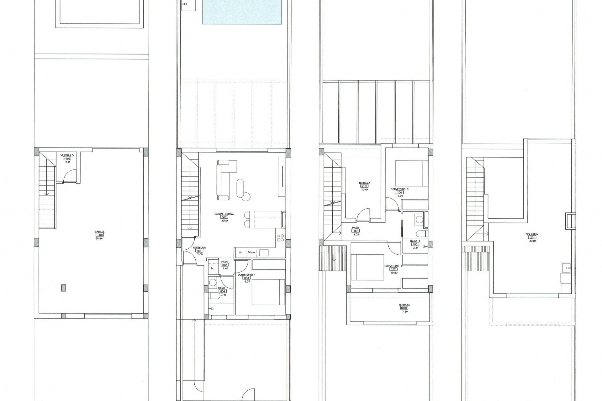
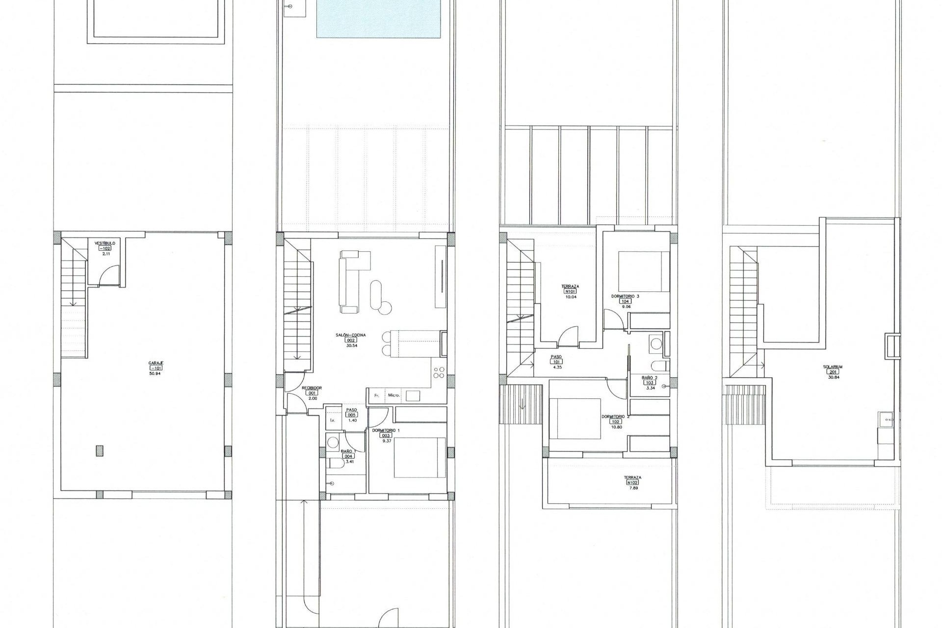
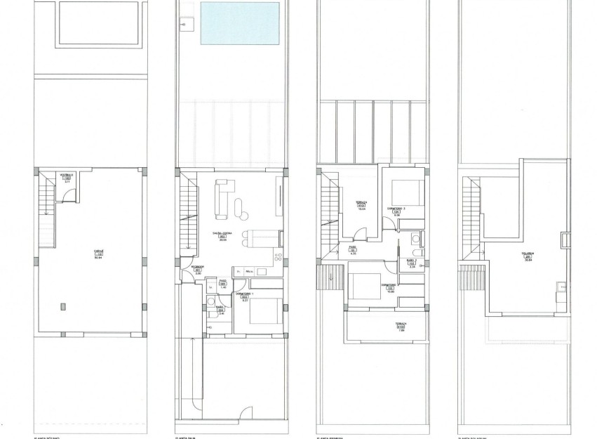
Chaque maison présente un design contemporain élégant et des espaces intérieurs lumineux. Les maisons sont réparties sur trois niveaux plus un solarium sur le toit, offrant un maximum de confort et d'intimité :
Sous-sol avec garage privé pour 2 voitures et accès à un patio
Rez-de-chaussée avec salon et cuisine ouverts donnant sur un jardin et une piscine privée, 1 chambre et 1 salle de bains
Premier étage avec 2 chambres, 1 salle de bains et 2 terrasses
Solarium sur le toit avec cuisine d'été, idéal pour se détendre et profiter d'une vue panoramique
L'orientation est et ouest garantit un excellent éclairage naturel et une vie en plein air tout au long de la journée.
Finitions de haute qualité et confort
Ces maisons sont construites selon les normes les plus élevées et offrent des caractéristiques haut de gamme, notamment :
Piscine privée
Garage en sous-sol pour 2 voitures avec porte motorisée
Système d'eau chaude aérothermique
Climatisation gainable entièrement installée
Cuisine meublée et équipée
Salles de bains entièrement équipées avec meubles, miroirs et parois de douche
Porte d'entrée sécurisée
Vivez entre la mer et le fairway
Nichée au cœur d'un paysage méditerranéen luxuriant, cette communauté exclusive offre une vie paisible à proximité du parcours de golf Serena, un parcours 18 trous réputé, entouré par la nature et des lacs tranquilles. Les eaux chaudes et peu profondes de la Mar Menor sont parfaites pour la baignade et la pratique de sports nautiques tels que la voile, le paddle surf et le kayak tout au long de l'année.
Distances clés :
Plage (Mar Menor) : 600 m
La Serena Golf : à côté du complexe
Centre de Los Alcázares : 2 km
Carthagène : 22 km
Ville de Murcie : 40 km
Aéroport de Murcie : 30 km
Aéroport d'Alicante : 90 km
Assurez-vous un style de vie méditerranéen
Que vous recherchiez une résidence permanente, une maison de vacances ou un investissement rentable, ces maisons offrent luxe, confort et un style de vie côtier de qualité supérieure.
Contactez-nous dès aujourd'hui pour organiser une visite et vous assurer votre nouvelle maison à Los Alcázares.
1051