New Build Villas with Private Pool at Serena Golf-Los Alcazares
New Build Villas with Private Pool at Serena Golf-Los Alcazares
Boutique Collection of Modern Homes Near the Sea
Discover an exclusive boutique development of 37 modern quad and semidetached style villas located at La Serena Golf in Los Alcazares on the beautiful Costa Calida. These contemporary homes are designed for buyers seeking privacy, sunshine and an outdoor lifestyle just 300 meters from the warm waters of the Mar Menor.
Los Alcazares is a charming coastal town known for its long promenade, sandy beaches and relaxed Mediterranean atmosphere. The area enjoys more than 300 days of sunshine per year and offers excellent restaurants, shops, marinas and sports facilities. Its location between the sea and the golf course makes it one of the most desirable destinations in the region for both permanent living and holiday homes.
Modern Villas with Private Pool and Outdoor Living
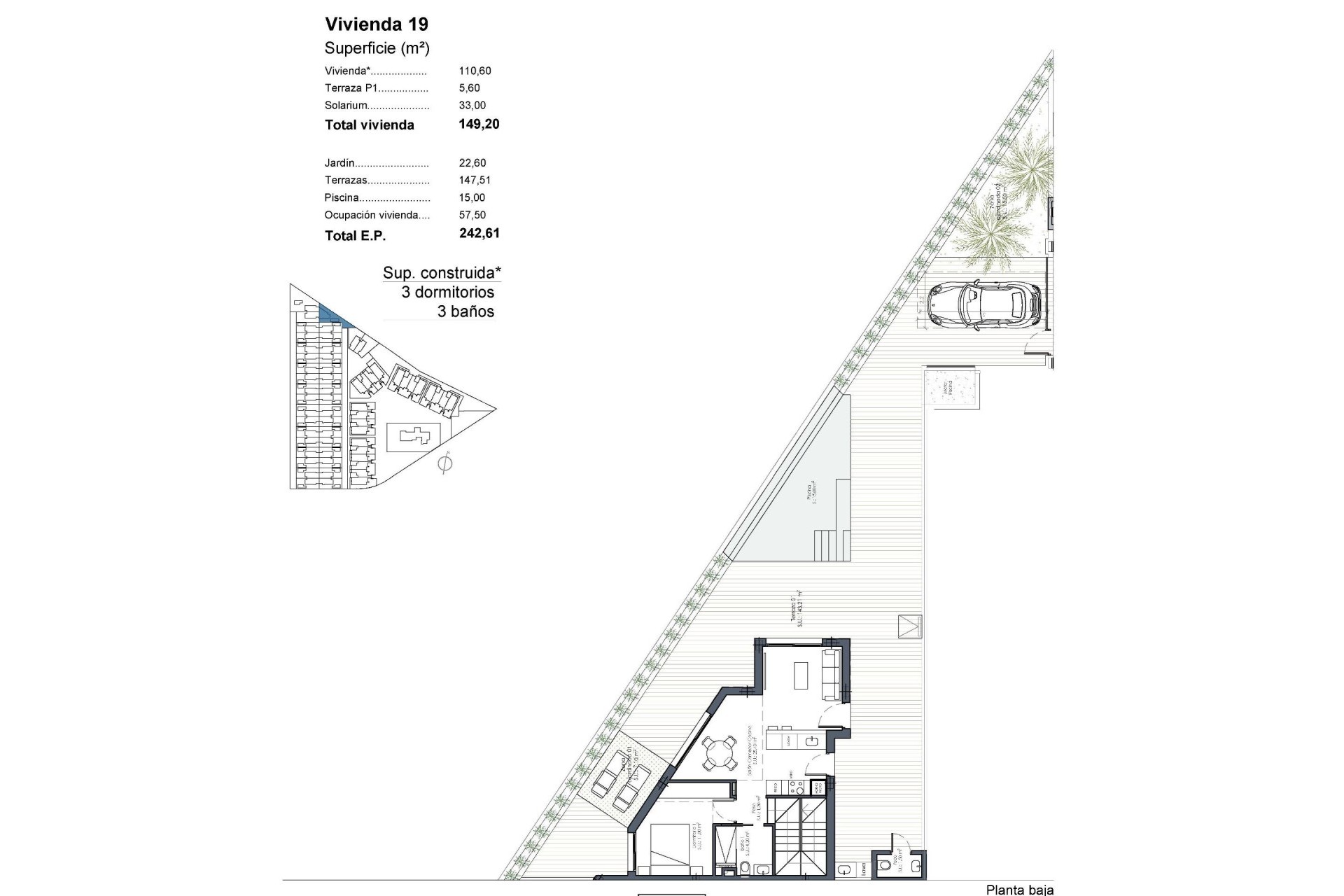
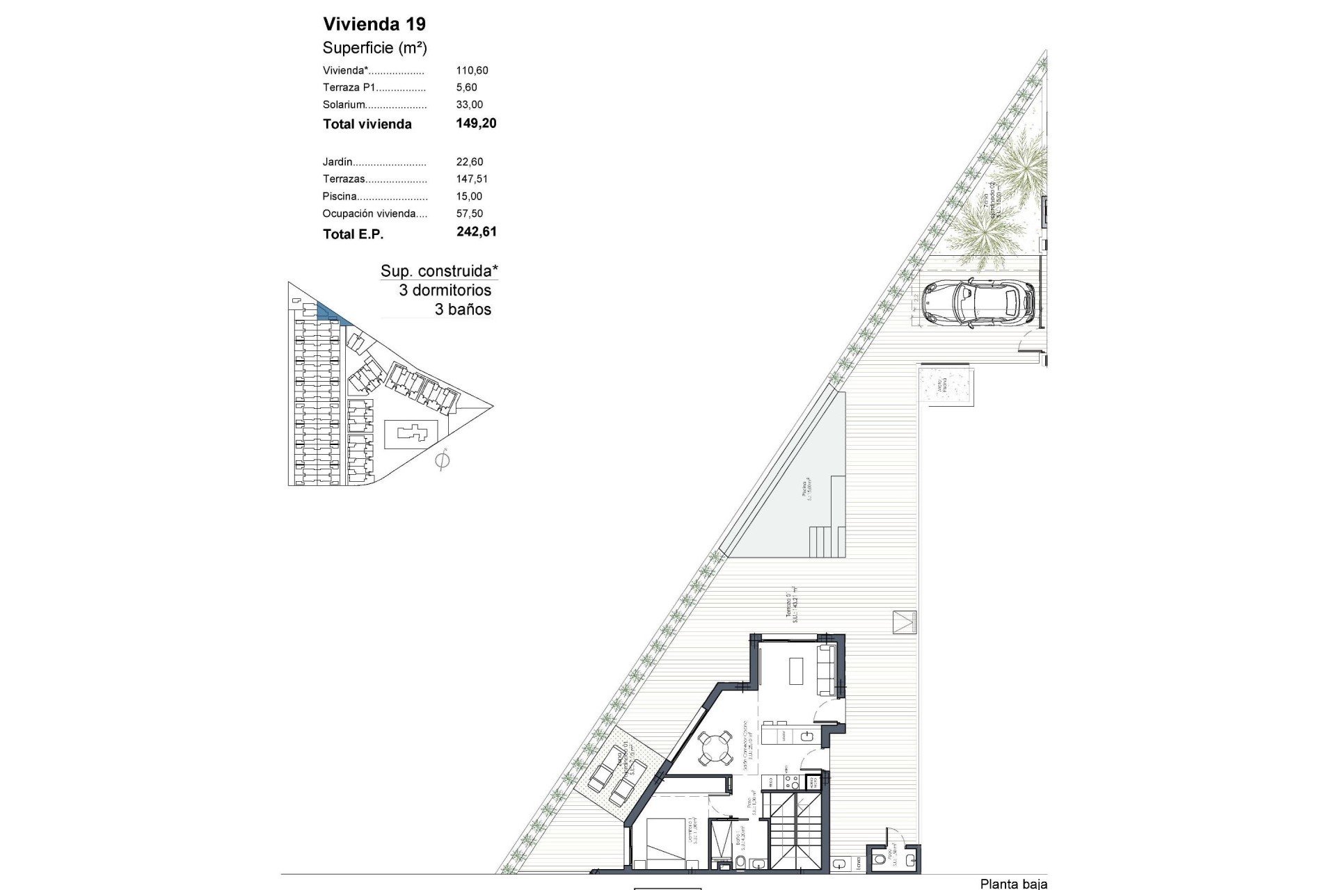
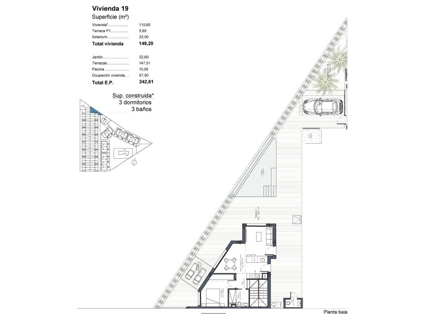
Each property features a private plot with its own swimming pool, creating the perfect environment to enjoy the Mediterranean climate throughout the year. The homes include 3 bedrooms and 2 or 3 bathrooms plus guest toilets, offering comfortable and functional living spaces ideal for families or guests.
The villas are designed to emphasize outdoor living. Next to the pool there is a barbecue area and an exterior guest toilet, perfect for entertaining friends and family. The rooftop solarium offers additional space to relax in the sun and includes a solar shower with pre installation for a jacuzzi and summer kitchen.
Parking is included both within the private plot and with an assigned underground parking space.
High Quality Finishes and Modern Features
The homes are built with modern materials and quality specifications designed for comfort and style.
Fully equipped kitchen with appliances in white glass finish
Bathrooms with backlit mirrors, shower screens and vanity units
Motorized window shutters
Basic lighting package
Fully installed ducted air conditioning
These features ensure a comfortable living experience whether the property is used as a main residence or holiday home.
Resort Style Amenities and Excellent Location
Owners also enjoy access to shared resort style facilities with a neighboring development. These amenities include landscaped gardens, a lagoon style communal pool, spa area, gym and sauna.
The location offers easy access to beaches, golf courses and nearby cities.
Mar Menor beach 0.3 km
La Serena Golf next to the development
Los Alcazares town center 2 km
Cartagena 22 km
Murcia 40 km
Region de Murcia International Airport 30 km
Alicante Elche Airport 90 km
The shallow waters of the Mar Menor are perfect for swimming, sailing, paddle surfing and other water sports all year round.
Secure Your Mediterranean Lifestyle in Los Alcazares
These new build villas offer the perfect combination of beach, golf and modern comfort on the Costa Calida. Contact us today to receive more information or arrange a visit and secure your new home at Serena Golf in Los Alcazares.
1051