New-Build One-Story Villas with Private Pool in Torrevieja
New-Build One-Story Villas with Private Pool in Torrevieja
Modern Villas in the Exclusive Los Balcones Area
Discover these stunning new-build villas, perfectly located in the Los Balcones urbanization of Torrevieja. Designed for comfort and elegance, these single-story homes offer spacious interiors, high-quality finishes, and a private pool, making them the perfect choice for those seeking a modern Mediterranean lifestyle.
Situated in a quiet and well-connected area, these villas are surrounded by a wide range of services, including restaurants, bars, shopping centers, and healthcare facilities, ensuring convenience and a high quality of life.
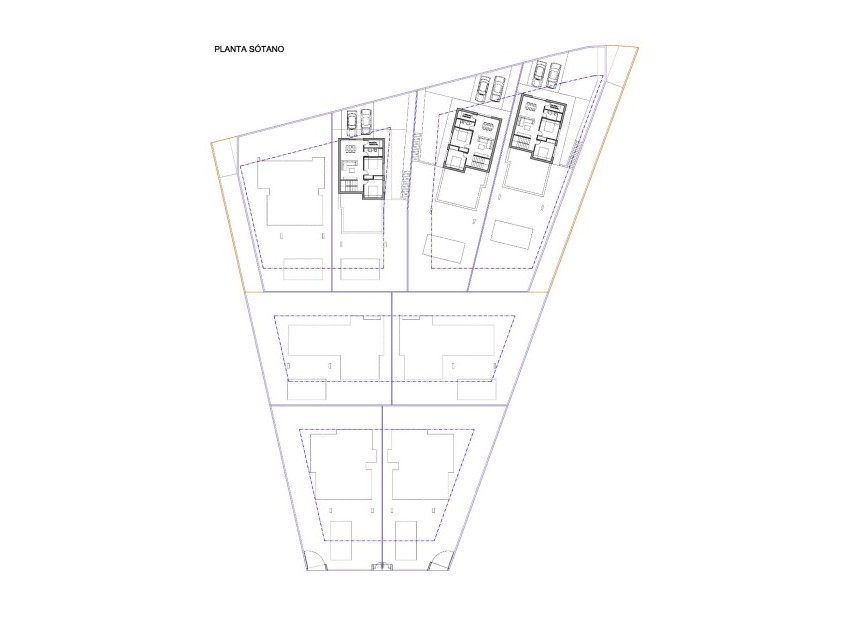
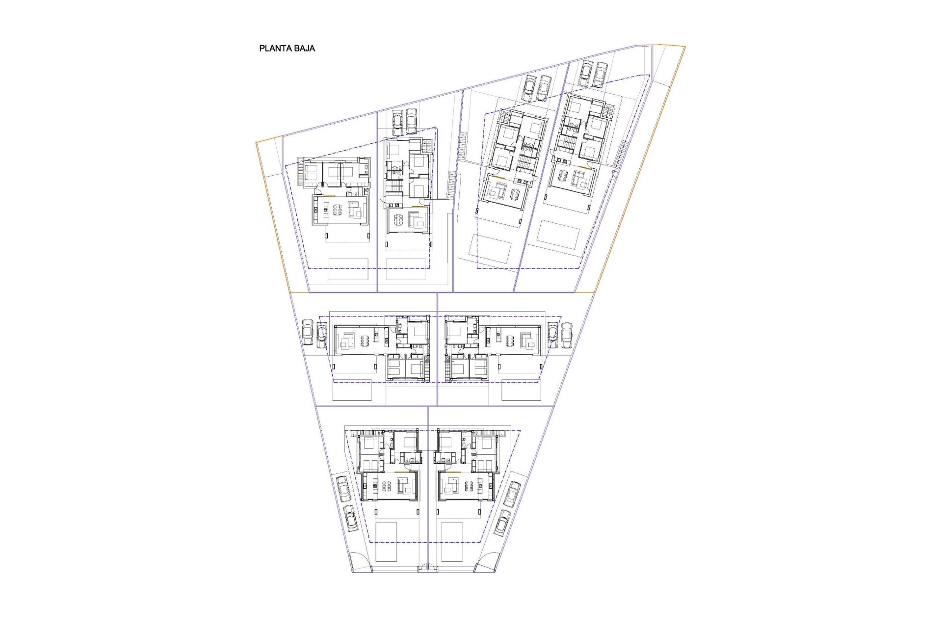
Spacious and Functional Design
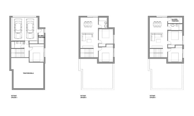
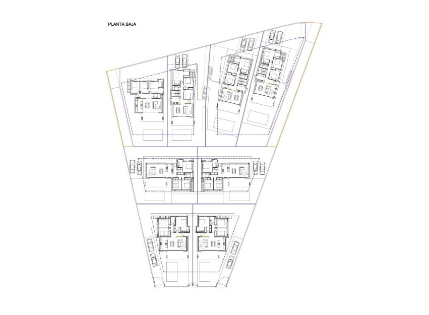
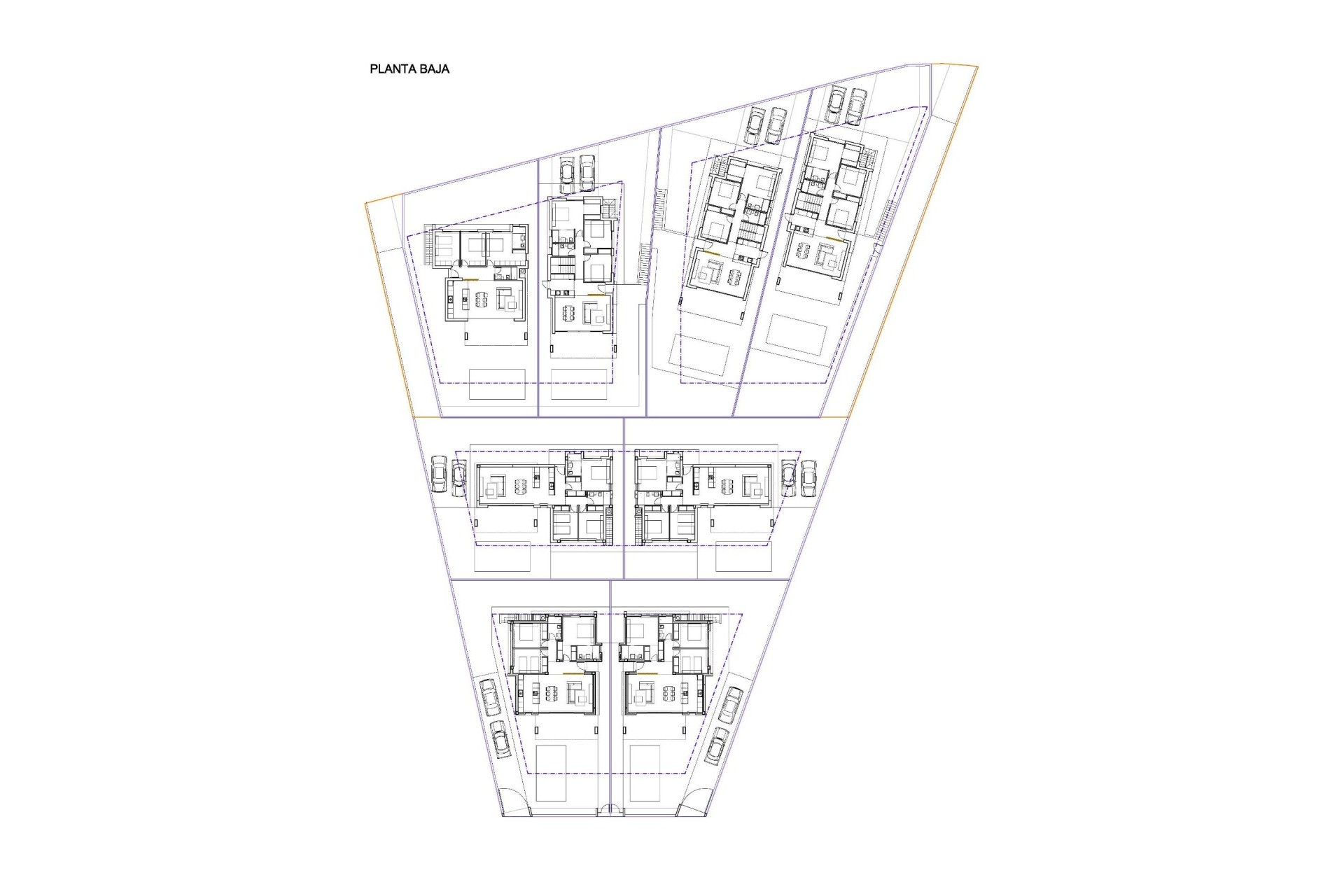
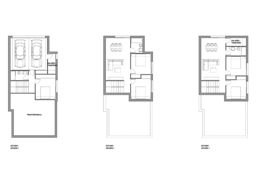
Each of the 8 independent villas is built on a generous 400m²+ plot, providing ample outdoor space. The homes feature:
3 spacious bedrooms and 2 fully equipped bathrooms.
A large open-plan living and dining area, designed for natural light and comfort.
A modern open kitchen, seamlessly integrated into the living space.
Private swimming pool, perfect for cooling off and entertaining.
Parking space for two cars on the plot.
Private solarium with open views, ideal for sunbathing and relaxation.
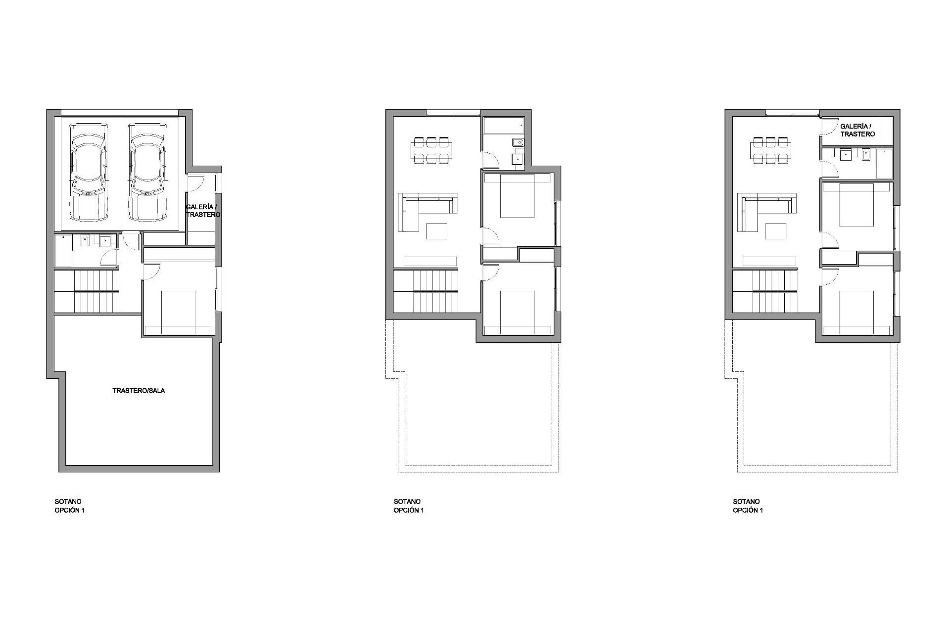
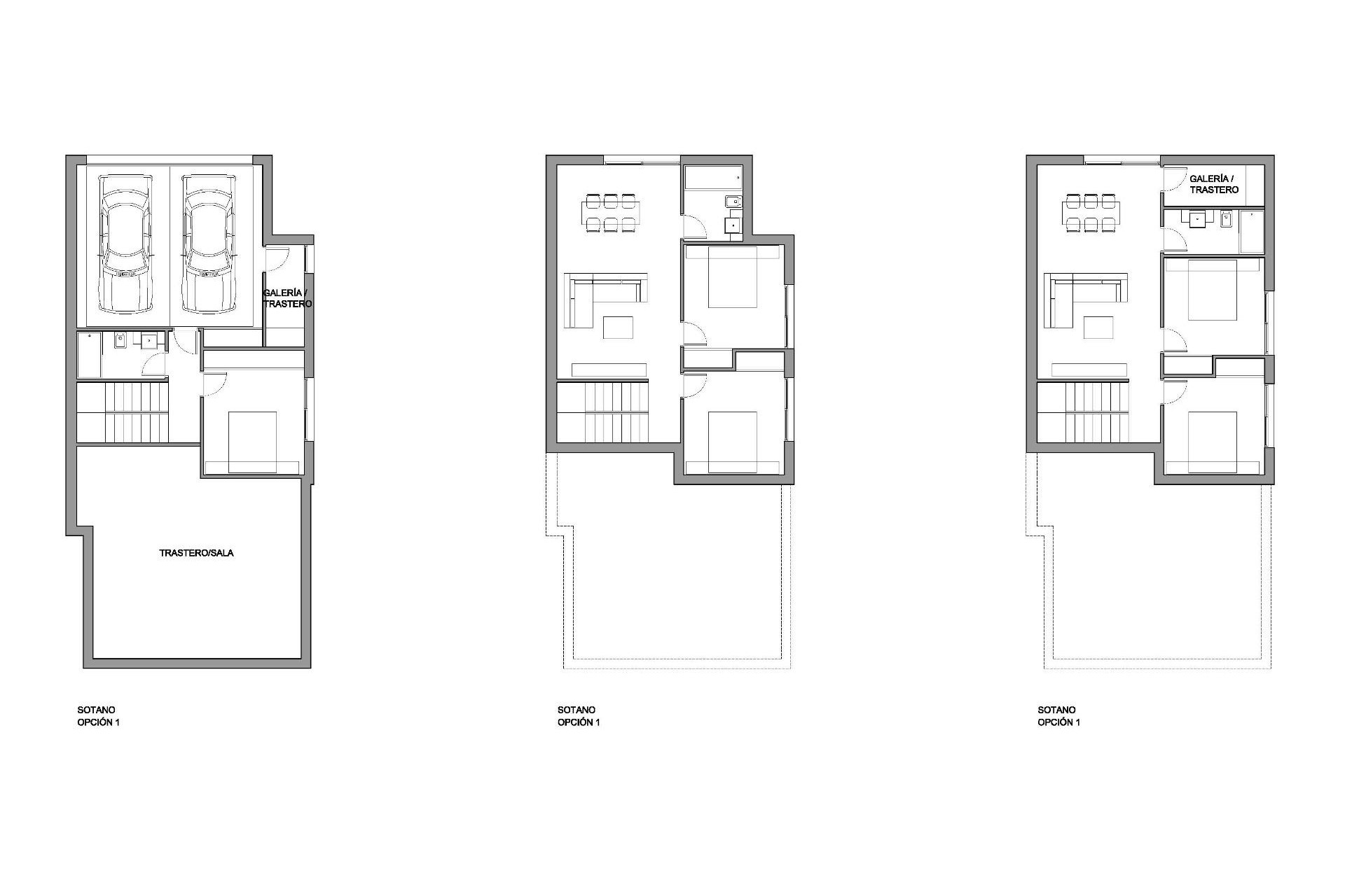
Optional basement available for additional living or storage space (at an extra cost).
High-Quality Features and Finishes
Built with premium materials and designed for a luxurious lifestyle, these villas include:
Underfloor heating in bathrooms, ensuring comfort year-round.
Lighting package included, enhancing ambiance and functionality.
A range of customization options, allowing buyers to tailor finishes to their preferences.
Prime Location Near Beaches and Services
Los Balcones is a highly sought-after residential area of Torrevieja, known for its peaceful environment while being close to essential amenities. These villas enjoy excellent connectivity to key locations:
Beaches of Torrevieja – Just 3 km away.
Alicante International Airport – 40 km (approx. 35-minute drive).
Shopping Centers (La Zenia Boulevard, Habaneras) – 10-15 minutes by car.
Golf Courses (Villamartín, Las Ramblas, Campoamor) – 15-20 minutes by car.
Torrevieja City Center – 3 km.
An Excellent Investment and Dream Home
With their prime location, modern design, and premium finishes, these villas offer an incredible opportunity for investment, vacation, or permanent residence on the Costa Blanca.
Contact us today for more information or to schedule a viewing!
1051