Modern Style Villas in La Romana, Alicante
Modern Style Villas in La Romana, Alicante
Exclusive New Build Homes in a Charming Spanish Village
These Modern-style new build villas in La Romana are designed for those seeking peace, comfort, and the authentic Spanish lifestyle. Located on plots of 370 m² in a residential area on the outskirts of the village, the homes are just a short walk from the town center, where you can enjoy traditional restaurants, shops, and all daily services. Surrounded by vineyards, almond groves, and mountain landscapes, La Romana offers a unique rural setting while being only 30 minutes from the coast.
Spacious Design with Modern Comfort
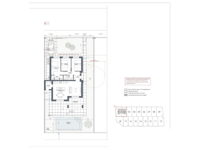
Each villa offers 127 m² of built space distributed across 3 bedrooms and 2 bathrooms, including a master suite with ensuite bathroom. The open-plan living and dining area integrates seamlessly with a furnished kitchen and direct access to the terrace and private pool. Additional features include a storage room/laundry area and private parking within the plot. For those who want extra outdoor space, there is the option to add a rooftop solarium at an additional cost.
Premium Features Included
These villas are built with quality finishes and come fully equipped with:
Private pool of 6 x 3.5 m
Air conditioning with heat pump (installation and unit included)
Modern kitchen with white cabinetry and granite countertops
LED lighting throughout the home and on the porch
Double glazing, white interior doors, and built-in wardrobes
Delivery is scheduled 14 months from reservation, ensuring a brand-new, personalized home.
Ideal Location in the Alicante Countryside
La Romana is a traditional Spanish village in the interior of Alicante, known for its welcoming community and natural surroundings. Its location provides the perfect balance of tranquility and accessibility:
Aspe – 8 km
Elche – 18 km
Alicante Airport – 35 km
Beaches of the Costa Blanca – 30 km
Golf Courses (Font del Llop & Alenda) – 20 km
Alicante City – 32 km
Your Mediterranean Lifestyle Awaits
If you are looking for a peaceful environment surrounded by mountains, vineyards, and charming Spanish towns, yet close to the Mediterranean coast, these villas in La Romana are the perfect choice. Contact us today for more information and secure your new home in Alicante.
1051