Ibiza Style New Build Villa with Luxury Features in Javea
Ibiza Style New Build Villa with Luxury Features in Javea
Exclusive Mediterranean Design Near El Arenal Beach
This stunning Ibiza style new build villa in Javea is located just 3 km from the famous El Arenal Beach, one of the most vibrant and attractive areas of the Costa Blanca North. Set within a quiet and well connected residential area, the property offers an exceptional combination of elegance, comfort and modern Mediterranean architecture. Javea is known for its crystal clear waters, picturesque coves, natural parks, marinas and excellent dining options, making it a highly desirable destination for both living and investing.
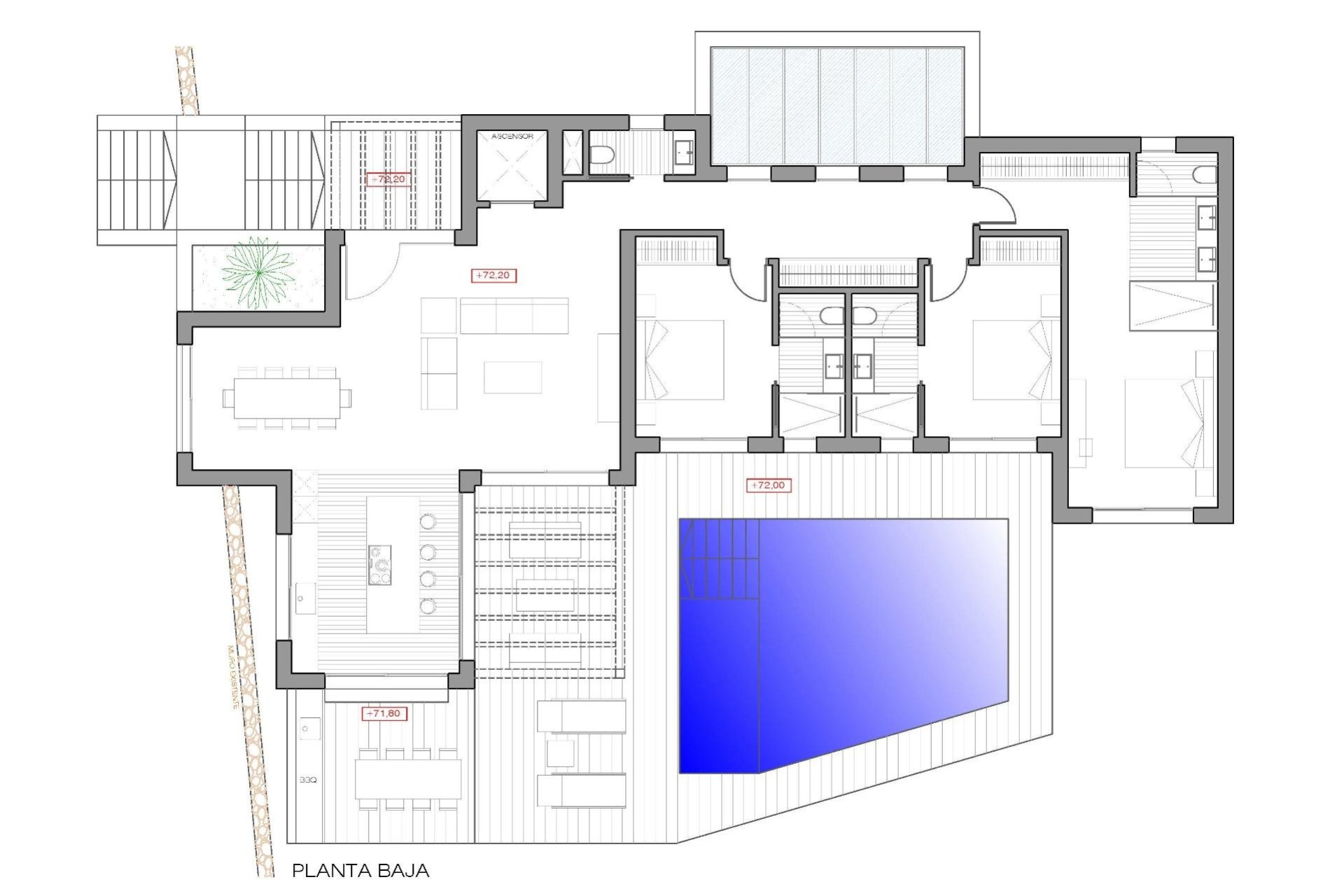
Elegant Interior Layout Across Two Levels
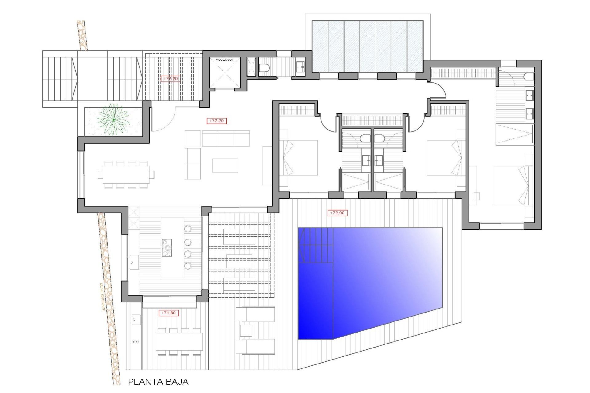
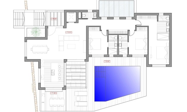
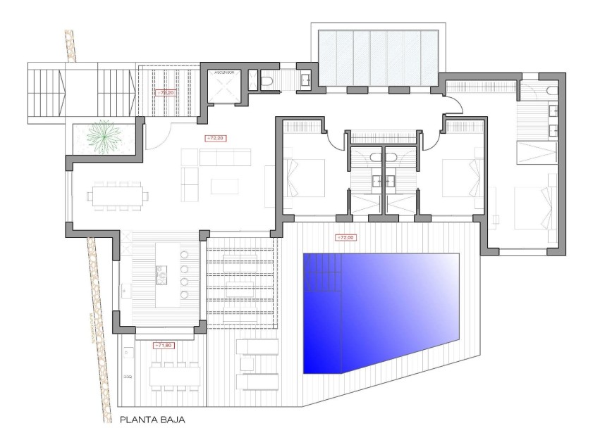
The villa has been thoughtfully designed to maximise comfort and style. On the ground floor, a spacious living and dining room connects seamlessly with a fully equipped kitchen, creating a bright and inviting open plan space. This level also includes a lift for added convenience, a guest toilet and a central hallway that connects all areas.
There are two double bedrooms with en-suite bathrooms, plus an impressive master bedroom that features a large layout, an en-suite bathroom and an integrated walk in wardrobe.
Outdoor Living Designed for the Mediterranean Lifestyle
The exterior spaces have been created to enjoy the warm climate of Javea all year round. The property includes two elegant pergolas, one at the entrance and another extending from the living area and kitchen towards the open terrace surrounding the 38 m2 private pool.
Next to the kitchen, an additional terrace with a barbecue area provides the perfect setting for outdoor dining and social gatherings.
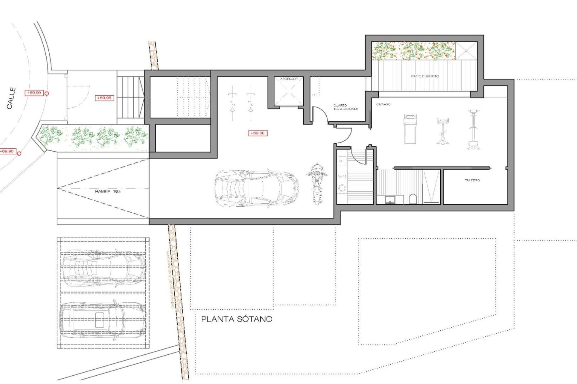
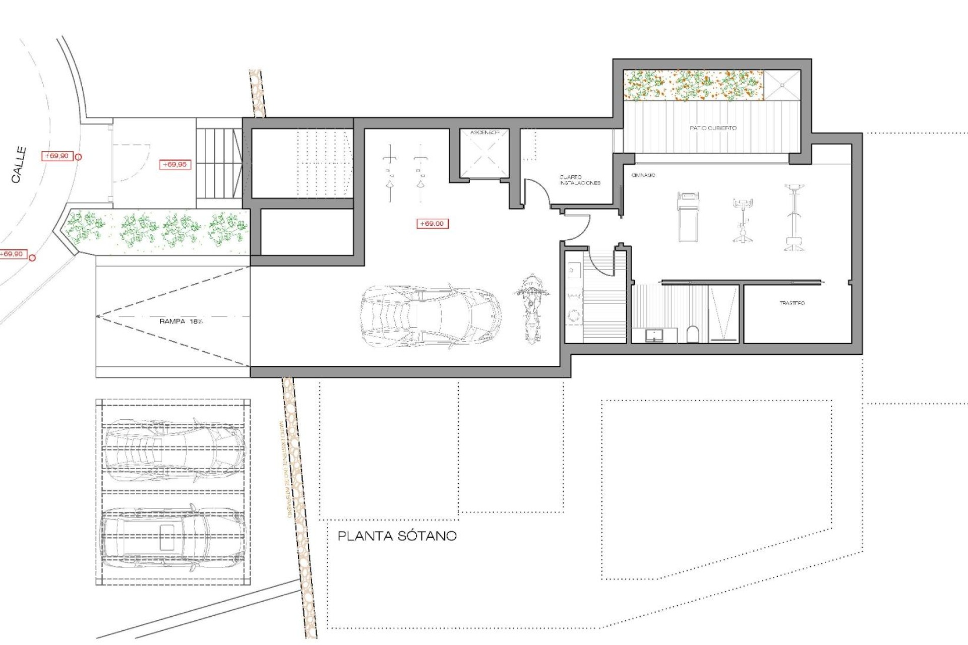
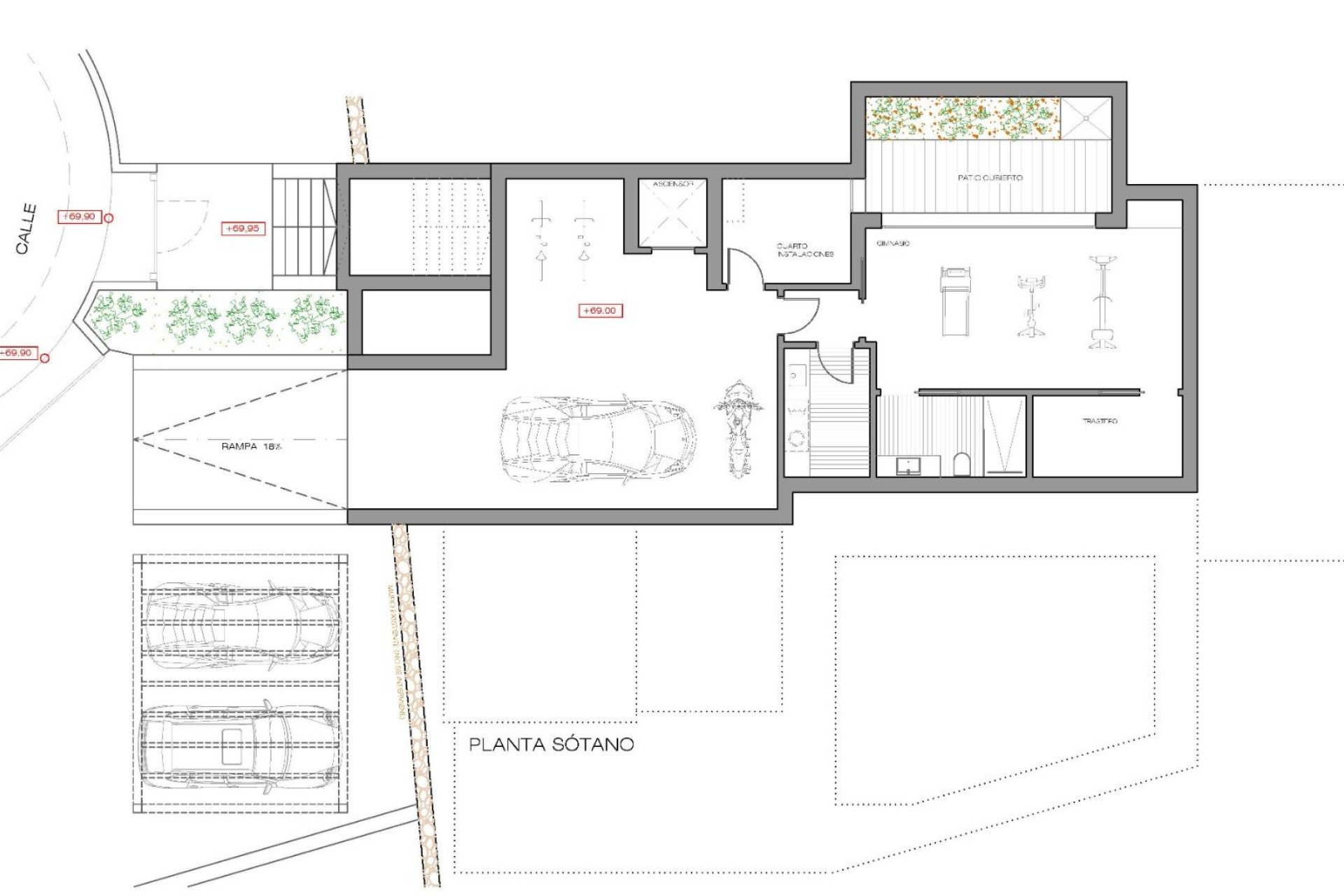
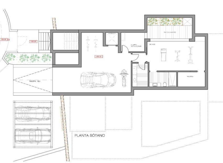
Premium Basement with Exceptional Amenities
The basement level combines functionality and luxury, featuring an open garage, lift access, utility room, laundry room, gym, covered patio, bathroom and a spacious storage area. This floor has been designed to adapt to modern living needs while offering maximum convenience.
Prime Location in Javea
Javea offers a unique mix of natural beauty, leisure options and high quality services.
Key distances from the villa:
El Arenal Beach 3 km
Javea Port and Marina 7 km
Javea Golf Club 3 km
Alicante Airport 100 km
Valencia Airport 125 km
Your Mediterranean Home Awaits
Whether you are looking for a permanent residence, a luxury holiday home or a premium investment opportunity, this villa delivers outstanding quality and an unbeatable location. Contact us today to arrange a viewing and discover your new home in Javea.
1051